Maison neuve, 93 m² - Chamaret (26230)
258 000 €
Chamaret (26230)
Proposée par MAISONS FRANCE CONFORT – 4 pièces - 3 chambres - terrain 561 m²
|
|
| MAISONS FRANCE CONFORT |
| (120 avis) |
- Demande d'information
- Prendre rendez-vous
MAISON À CONSTRUIRE : ceci est une annonce d'une maison neuve à construire.
Vous avez envie de fonctionnalité, de lignes épurées et aussi d'un jardin !
Bienvenue dans votre maison ACCESS ETAGE 93.
Optimisée, elle s'adapte à son environnement avec de larges ouvertures sur le jardin et des espaces de vie chaleureux et lumineux.
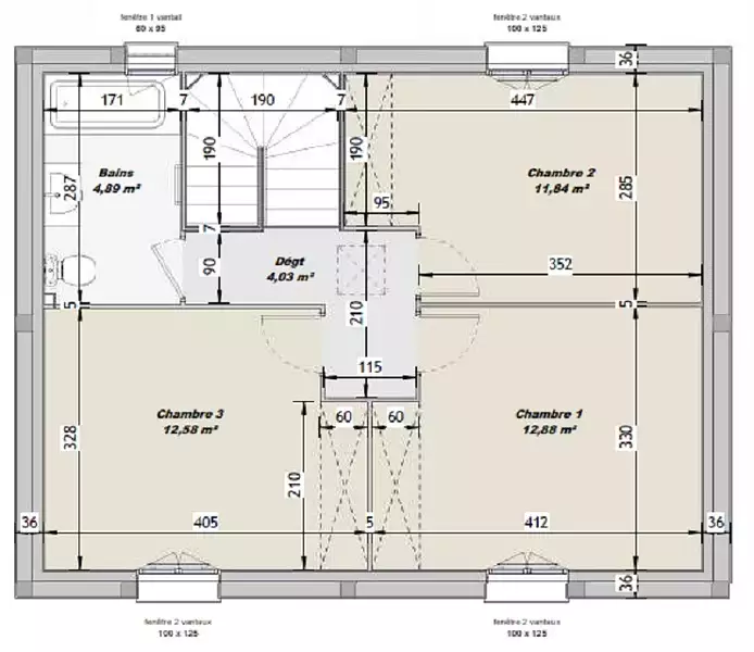
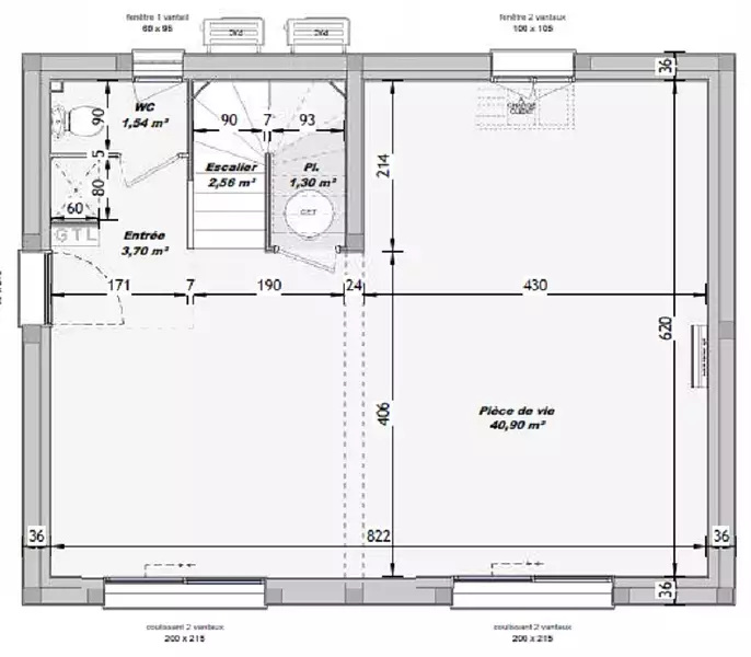
A la fois chic et élégante cette maison de 93 m² offre de beaux atouts : une entrée avec toutes les commodités, placards, WC, un séjour de près de 41 m² pour le salon et la salle à manger ouverte sur la cuisine. À l'étage, la composition du plan continue avec 3 belles chambres équipées de rangements, et une salle de bains. Le charme d'une maison moderne et l'élégance des matériaux d'aujourd'hui pour ravir toute la famille.
Vous souhaitez en voir plus, contactez-nous !
Votre conseiller en construction Olivier PUAUX 06.01.46.37.15 MAISONS FRANCE CONFORT se tient à votre disposition pour en savoir plus à propos de cette habitation, en découvrir d'autres ou bien même créer votre projet personnalisé.
Référence : OP2403168_1
Terrain proposé par un partenaire foncier selon disponibilités et autorisation de publicité au prix de 103 000 €. Hors droit d'enregistrement et frais de notaire. Terrain + Maison proposés au prix de 155 000 € (Hors branchements et raccordements, papiers peints, peintures, revêtement de sol dans les chambres. Tarif modifiable sans préavis). Etiquette énergie : A. Différents modèles disponibles pour ce terrain. Assurances et garanties du constructeur (RC professionnelle, décennale, dommage ouvrage, garantie de remboursement de l'acompte, livraison à prix et délai convenu) : https://www.maisons-france-confort.fr/mentions-legales/. HEXAOM Services est enregistré auprès de l'ORIAS en tant que Courtier en financement, Niveau 1, sous le numéro 14001345.
Les informations sur les risques auxquels ce bien est exposé sont disponibles sur le site Géorisques : www.georisques.gouv.fr
Bienvenue dans votre maison ACCESS ETAGE 93.
Optimisée, elle s'adapte à son environnement avec de larges ouvertures sur le jardin et des espaces de vie chaleureux et lumineux.
A la fois chic et élégante cette maison de 93 m² offre de beaux atouts : une entrée avec toutes les commodités, placards, WC, un séjour de près de 41 m² pour le salon et la salle à manger ouverte sur la cuisine. À l'étage, la composition du plan continue avec 3 belles chambres équipées de rangements, et une salle de bains. Le charme d'une maison moderne et l'élégance des matériaux d'aujourd'hui pour ravir toute la famille.
Vous souhaitez en voir plus, contactez-nous !
Votre conseiller en construction Olivier PUAUX 06.01.46.37.15 MAISONS FRANCE CONFORT se tient à votre disposition pour en savoir plus à propos de cette habitation, en découvrir d'autres ou bien même créer votre projet personnalisé.
Référence : OP2403168_1
Terrain proposé par un partenaire foncier selon disponibilités et autorisation de publicité au prix de 103 000 €. Hors droit d'enregistrement et frais de notaire. Terrain + Maison proposés au prix de 155 000 € (Hors branchements et raccordements, papiers peints, peintures, revêtement de sol dans les chambres. Tarif modifiable sans préavis). Etiquette énergie : A. Différents modèles disponibles pour ce terrain. Assurances et garanties du constructeur (RC professionnelle, décennale, dommage ouvrage, garantie de remboursement de l'acompte, livraison à prix et délai convenu) : https://www.maisons-france-confort.fr/mentions-legales/. HEXAOM Services est enregistré auprès de l'ORIAS en tant que Courtier en financement, Niveau 1, sous le numéro 14001345.
Les informations sur les risques auxquels ce bien est exposé sont disponibles sur le site Géorisques : www.georisques.gouv.fr
- Prix
-
- Prix total : 258 000 €
- Prix du modèle de maison : 155 000 €
- Prix du terrain : 103 000 €
- Terrain
-
- Surface : 561 m²
- Maison
-
- Surface : 93 m²
- Pièces : 4
- Chambres : 3
- Être rappelé par un conseiller
- Demander plus d’infos
- Demande d'information
Chamaret (26230)
Maisons à proximité
Maison neuve, 90 m²
Chamaret (26230)
Chamaret (26230)
Maison de 4 pièces
Maison neuve, 81 m²
Chamaret (26230)
Chamaret (26230)
Maison de 4 pièces
Maison neuve, 109 m²
Chamaret (26230)
Chamaret (26230)
Maison de 5 pièces
Maison neuve, 121 m²
Chamaret (26230)
Chamaret (26230)
Maison de 5 pièces
Maison neuve, 90 m²
Chamaret (26230)
Chamaret (26230)
Maison de 4 pièces
Maison neuve, 96 m²
Chamaret (26230)
Chamaret (26230)
Maison de 1 pièce
Programmes à proximité
Contacter MAISONS FRANCE CONFORT pour recevoir plus d'informations
Remplissez le formulaire ci-dessous, vos informations sont transmises directement au constructeur qui vous contactera par email ou par téléphone afin de traiter votre demande. En savoir plus.