Maison neuve, 166 m² - Cergy (95000)

473 000 €
Cergy (95000)

Proposée par MAISONS FRANCE CONFORT – 8 pièces - 4 chambres - terrain 3 500 m²

MAISONS FRANCE CONFORT
MAISONS FRANCE CONFORT
(55 avis)
  • Demande d'information
MAISON À CONSTRUIRE : ceci est une annonce d'une maison neuve à construire.
Concrétisez votre projet de construction sur un terrain de 3500m² à LONGUESSE
Situé dans la très prisée commune de LONGUESSE, ce terrain offre une opportunité rare dans un cadre verdoyant et recherché., venez découvrir ce terrain de 3 500 m². Il donne sur un espace vert et bénéficie d'une exposition ouest. Dans un quartier prisé, le terrain idéalement situé est proche des écoles et des commerces. On trouve une école primaire dans le quartier. A seulement 10 minutes de la gare de US (ligne J) et du RER A de Cergy le Haut.
Accès rapide à l'A15, l'A13 et à la RN184
Ce projet es estimé à 473000€
.
*Hors faris de notaire et frais annexes
Référence : LAO2309921_1
Terrain proposé par un partenaire foncier selon disponibilités et autorisation de publicité au prix de 145 000 €. Hors droit d'enregistrement et frais de notaire. Maison proposée, avec un contrat de construction de maison individuelle, dans le cadre de la loi du 19/12/1990, au prix de 328 000 € (Hors branchements et raccordements, papiers peints, peintures, revêtement de sol dans les chambres, qui sont chiffrés dans les travaux qui restent à charge du client. Tarif modifiable sans préavis). Étiquette énergie : A. Différents modèles disponibles pour ce terrain. Assurances et garanties du constructeur comprises (RC professionnelle, décennale, dommage ouvrage).

Les informations sur les risques auxquels ce bien est exposé sont disponibles sur le site Géorisques : www.georisques.gouv.fr


Prix
  • Prix total : 473 000 €
  • Prix du modèle de maison : 328 000 €
  • Prix du terrain : 145 000 €

Terrain
  • Surface : 3 500 m²

Maison
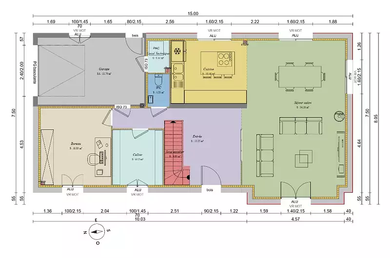
  • Surface : 166 m²
  • Pièces : 8
  • Chambres : 4
  • Garage : 1

  • Être rappelé par un conseiller
  • Demander plus d’infos
  • Demande d'information
Cergy (95000)

Maisons à proximité

BUCOLIA
BUCOLIA
Cergy (95000)

Appartements de 3 pièces et maisons de 3 pièces
Livraison 2ème trimestre 2027

Programmes à proximité

VIVAREA
VIVAREA
Cergy (95800)

Appartements de 2 à 4 pièces
Livraison 2ème trimestre 2027

L'Isara
L'Isara
Cergy (95000)

Appartements de 3 à 6 pièces

VIVAREA
VIVAREA
Cergy (95000)

Appartements de 3 à 4 pièces
Livraison 2ème trimestre 2027

BUCOLIA
BUCOLIA
Cergy (95000)

Appartements de 3 pièces et maisons de 3 pièces
Livraison 2ème trimestre 2027

Résidence Sisley
Résidence Sisley
Pontoise (95300)

Appartements de 2 à 4 pièces
Livraison 1er trimestre 2027

Allure
Allure
Pontoise (95300)

Appartements de 1 à 4 pièces
Livraison 3ème trimestre 2027

Contacter MAISONS FRANCE CONFORT pour recevoir plus d'informations

Remplissez le formulaire ci-dessous, vos informations sont transmises directement au constructeur qui vous contactera par email ou par téléphone afin de traiter votre demande. En savoir plus.

Voir tous nos programmes immobiliers neufs à Cergy