Maison neuve, 154 m² - Cébazan (34360)
530 000 €
Cébazan (34360)
Proposée par MAISONS DE MANON – 5 pièces - 4 chambres - terrain 1 410 m²
|
|
| MAISONS DE MANON |
- Demande d'information
- Prendre rendez-vous
MAISON À CONSTRUIRE : ceci est une annonce d'une maison neuve à construire.
PROJET DE CONSTRUCTION - Cébazan : maison de 5 pièces (154 m²)
MAISON 5 PIÈCES - PROCHE DE BÉZIERS
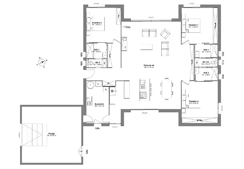
À 35 km de la côte méditerranéenne et à 21 km de Béziers, nous sommes heureux de vous présenter cette maison de 5 pièces de plain-pied de 154 m² à Cébazan (34360). Conçue de plain-pied, elle dispose de quatre chambres, d'une cuisine, d'un cellier et de trois salles de bains + GARAGE.
Le terrain de cette maison s'étend sur 1 410 m².
(Carrelage inclus dans toutes les pièces / Raccordements inclus / Gainable compris).
Il y a une école primaire dans le quartier. On trouve un tennis et une boulangerie à quelques minutes.
Elle est proposée à l'achat pour 530 000 €.
Pour plus d'information contacter Anthony BALLESTER : 06-27-21-51-55 Maisons de Manon Béziers pour échanger sur votre projet et réaliser une étude gratuite. (Plan personnalisable). Tous nos ouvrages sont réalisés sur-mesure en fonction de vos attentes et de nos échanges avec vous ainsi que dans le respect de la règlementation RE 2020. Ce projet comporte les garanties suivantes: Contrat de construction CCMI. Dommage/Ouvrage. RC Garantie décennale. Parfaite achèvement. Etude de sol G2. Prix et délais convenu. Garantie de livraison. Garantie financière Pour votre tranquillité nous nous occupons de toutes les formalités administratives.
Référence : AB2424791_8
Terrain proposé par un partenaire foncier selon disponibilités et autorisation de publicité au prix de 155 000 €. Hors droit d'enregistrement et frais de notaire. Terrain + Maison proposés au prix de 530 000 € (Hors branchements et raccordements, papiers peints, peintures, revêtement de sol dans les chambres. Tarif modifiable sans préavis). Etiquette énergie : A. Différents modèles disponibles pour ce terrain. Assurances et garanties du constructeur (RC professionnelle, décennale, dommage ouvrage, garantie de remboursement de l'acompte, livraison à prix et délai convenu) : HEXAOM Services est enregistré auprès de l'ORIAS en tant que Courtier en financement, Niveau 1, sous le numéro 14001345.
Les informations sur les risques auxquels ce bien est exposé sont disponibles sur le site Géorisques : www.georisques.gouv.fr
MAISON 5 PIÈCES - PROCHE DE BÉZIERS
À 35 km de la côte méditerranéenne et à 21 km de Béziers, nous sommes heureux de vous présenter cette maison de 5 pièces de plain-pied de 154 m² à Cébazan (34360). Conçue de plain-pied, elle dispose de quatre chambres, d'une cuisine, d'un cellier et de trois salles de bains + GARAGE.
Le terrain de cette maison s'étend sur 1 410 m².
(Carrelage inclus dans toutes les pièces / Raccordements inclus / Gainable compris).
Il y a une école primaire dans le quartier. On trouve un tennis et une boulangerie à quelques minutes.
Elle est proposée à l'achat pour 530 000 €.
Pour plus d'information contacter Anthony BALLESTER : 06-27-21-51-55 Maisons de Manon Béziers pour échanger sur votre projet et réaliser une étude gratuite. (Plan personnalisable). Tous nos ouvrages sont réalisés sur-mesure en fonction de vos attentes et de nos échanges avec vous ainsi que dans le respect de la règlementation RE 2020. Ce projet comporte les garanties suivantes: Contrat de construction CCMI. Dommage/Ouvrage. RC Garantie décennale. Parfaite achèvement. Etude de sol G2. Prix et délais convenu. Garantie de livraison. Garantie financière Pour votre tranquillité nous nous occupons de toutes les formalités administratives.
Référence : AB2424791_8
Terrain proposé par un partenaire foncier selon disponibilités et autorisation de publicité au prix de 155 000 €. Hors droit d'enregistrement et frais de notaire. Terrain + Maison proposés au prix de 530 000 € (Hors branchements et raccordements, papiers peints, peintures, revêtement de sol dans les chambres. Tarif modifiable sans préavis). Etiquette énergie : A. Différents modèles disponibles pour ce terrain. Assurances et garanties du constructeur (RC professionnelle, décennale, dommage ouvrage, garantie de remboursement de l'acompte, livraison à prix et délai convenu) : HEXAOM Services est enregistré auprès de l'ORIAS en tant que Courtier en financement, Niveau 1, sous le numéro 14001345.
Les informations sur les risques auxquels ce bien est exposé sont disponibles sur le site Géorisques : www.georisques.gouv.fr
- Prix
-
- Prix total : 530 000 €
- Prix du modèle de maison : 375 000 €
- Prix du terrain : 155 000 €
- Terrain
-
- Surface : 1 410 m²
- Maison
-
- Surface : 154 m²
- Pièces : 5
- Chambres : 4
- Garage : 1
- Être rappelé par un conseiller
- Demander plus d’infos
- Demande d'information
Cébazan (34360)
Maisons à proximité
Maison neuve, 70 m²
Cébazan (34360)
Cébazan (34360)
Maison de 3 pièces
Maison neuve, 181 m²
Cébazan (34360)
Cébazan (34360)
Maison de 7 pièces
Maison neuve, 101 m²
Cébazan (34360)
Cébazan (34360)
Maison de 5 pièces
Maison neuve, 95 m²
Cébazan (34360)
Cébazan (34360)
Maison de 5 pièces
Maison neuve, 60 m²
Cébazan (34360)
Cébazan (34360)
Maison de 3 pièces
Maison neuve, 86 m²
Cébazan (34360)
Cébazan (34360)
Maison de 4 pièces
Programmes à proximité
Ovéa
Béziers (34500)
Béziers (34500)
Appartements de 2 à 4 pièces
Livraison 3ème trimestre 2026
Perles d'ô
Béziers (34500)
Béziers (34500)
Appartements de 3 à 4 pièces
Livraison 2ème trimestre 2026
Egérie
Béziers (34500)
Béziers (34500)
Appartements de 3 à 4 pièces
Livraison 3ème trimestre 2026
Les CINQ SENS
Béziers (34500)
Béziers (34500)
Appartements de 2 à 4 pièces
Livraison 4ème trimestre 2026
LE PATIO DU MIDI
Béziers (34500)
Béziers (34500)
Appartements de 2 à 4 pièces
Contacter MAISONS DE MANON pour recevoir plus d'informations
Remplissez le formulaire ci-dessous, vos informations sont transmises directement au constructeur qui vous contactera par email ou par téléphone afin de traiter votre demande. En savoir plus.