Maison neuve, 85 m² - Canet (34800)
315 000 €
Canet (34800)
Proposée par MAISONS BALENCY – 5 pièces - 3 chambres - terrain 500 m²
|
|
| MAISONS BALENCY |
- Demande d'information
- Prendre rendez-vous
MAISON À CONSTRUIRE : ceci est une annonce d'une maison neuve à construire.
VENTE d'une maison T5 (85 m²) à Canet
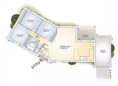
Idéalement située - À Canet (34800), maison neuve à vendre de 5 pièces, 85 m² sur 500 m² de terrain. Son intérieur comporte trois chambres, une cuisine et une salle de bains.
À dix minutes : écoles, crèche, tennis, commerces, boulangeries et épicerie. Autoroutes A75 et A750 accessibles à 6 km. Mer Méditerranée à 32 km. Sète à 27 km.
Le prix de vente de cette maison de 5 pièces est de 315 000 €.
. Maisons Balency Pézenas est là pour vous accompagner dans tous vos projets immobiliers.
Référence : HM2338250_7
Terrain proposé par un partenaire foncier selon disponibilités et autorisation de publicité au prix de 139 000 €. Hors droit d'enregistrement et frais de notaire. Maison proposée, avec un contrat de construction de maison individuelle, dans le cadre de la loi du 19/12/1990, au prix de 176 000 € (Hors branchements et raccordements, papiers peints, peintures, revêtement de sol dans les chambres, qui sont chiffrés dans les travaux qui restent à charge du client. Tarif modifiable sans préavis). Étiquette énergie : A. Différents modèles disponibles pour ce terrain. Assurances et garanties du constructeur comprises (RC professionnelle, décennale, dommage ouvrage).
Les informations sur les risques auxquels ce bien est exposé sont disponibles sur le site Géorisques : www.georisques.gouv.fr
Idéalement située - À Canet (34800), maison neuve à vendre de 5 pièces, 85 m² sur 500 m² de terrain. Son intérieur comporte trois chambres, une cuisine et une salle de bains.
À dix minutes : écoles, crèche, tennis, commerces, boulangeries et épicerie. Autoroutes A75 et A750 accessibles à 6 km. Mer Méditerranée à 32 km. Sète à 27 km.
Le prix de vente de cette maison de 5 pièces est de 315 000 €.
. Maisons Balency Pézenas est là pour vous accompagner dans tous vos projets immobiliers.
Référence : HM2338250_7
Terrain proposé par un partenaire foncier selon disponibilités et autorisation de publicité au prix de 139 000 €. Hors droit d'enregistrement et frais de notaire. Maison proposée, avec un contrat de construction de maison individuelle, dans le cadre de la loi du 19/12/1990, au prix de 176 000 € (Hors branchements et raccordements, papiers peints, peintures, revêtement de sol dans les chambres, qui sont chiffrés dans les travaux qui restent à charge du client. Tarif modifiable sans préavis). Étiquette énergie : A. Différents modèles disponibles pour ce terrain. Assurances et garanties du constructeur comprises (RC professionnelle, décennale, dommage ouvrage).
Les informations sur les risques auxquels ce bien est exposé sont disponibles sur le site Géorisques : www.georisques.gouv.fr
- Prix
-
- Prix total : 315 000 €
- Prix du modèle de maison : 176 000 €
- Prix du terrain : 139 000 €
- Terrain
-
- Surface : 500 m²
- Maison
-
- Surface : 85 m²
- Pièces : 5
- Chambres : 3
- Garage : 1
- Être rappelé par un conseiller
- Demander plus d’infos
- Demande d'information
Canet (34800)
Maisons à proximité
Maison neuve, 120 m²
Canet (34800)
Canet (34800)
Maison de 5 pièces
Maison neuve, 78 m²
Canet (34800)
Canet (34800)
Maison de 4 pièces
Maison neuve, 90 m²
Canet (34800)
Canet (34800)
Maison de 5 pièces
Maison neuve, 81 m²
Canet (34800)
Canet (34800)
Maison de 4 pièces
VILLA 90 m²
Canet (34800)
Canet (34800)
Maison de 4 pièces
Maison neuve
Canet (34800)
Canet (34800)
Maison
Programmes à proximité
Le clos des violettes
Cournonterral (34660)
Cournonterral (34660)
Appartements de 3 à 4 pièces
Livraison 1er trimestre 2028
VILLAE
Pignan (34570)
Pignan (34570)
Appartements de 1 à 3 pièces
Livraison 3ème trimestre 2028
Le Domaine d'Emilie
Fabrègues (34690)
Fabrègues (34690)
Appartements de 2 à 4 pièces
Livraison 3ème trimestre 2028
Contacter MAISONS BALENCY pour recevoir plus d'informations
Remplissez le formulaire ci-dessous, vos informations sont transmises directement au constructeur qui vous contactera par email ou par téléphone afin de traiter votre demande. En savoir plus.