Maison neuve, 66 m² - Bourneau (85200)
143 100 €
Bourneau (85200)
Proposée par MAISONS TRADILIGNES – 3 pièces - 2 chambres - terrain 636 m²
|
|
| MAISONS TRADILIGNES |
- Demande d'information
- Prendre rendez-vous
MAISON À CONSTRUIRE : ceci est une annonce d'une maison neuve à construire.
Bourneau : maison T3 (66 m²) à vendre
MAISON 3 PIÈCES NEUVE
À 41 km de la côte atlantique, Maisons Tradilignes La Roche-sur-Yon vous présente cette maison de 3 pièces de plain-pied de 66 m² et de 636 m² de terrain à Bourneau (85200).
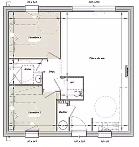
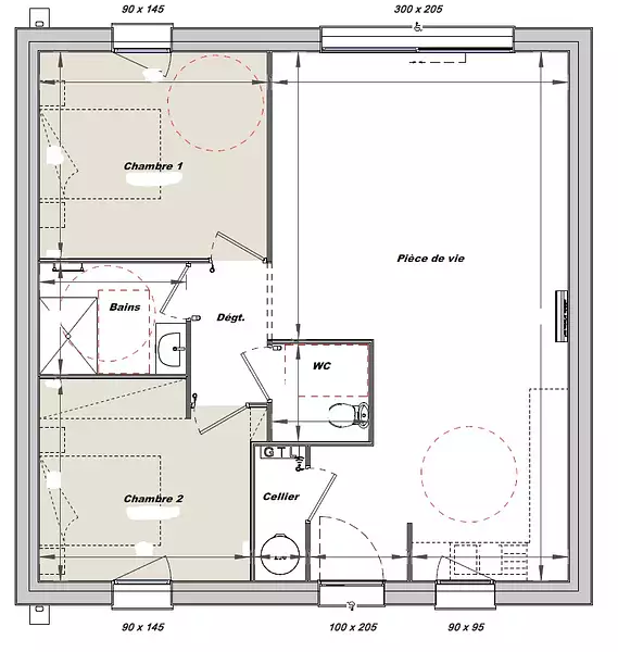
Conçue de plain-pied, elle dispose de deux chambres, d'une cuisine et d'une salle de bains. La maison est neuve.
L'École Primaire Publique à l'Orée des Bois est implantée à moins de 10 minutes à pied. On trouve un accès à l'autoroute A83 à 10 km.
Son prix de vente est de 143 100 €.
. Donnez vie à vos projets immobiliers avec Maisons Tradilignes La Roche-sur-Yon.
Référence : MC2316628_1
Terrain proposé par un partenaire foncier selon disponibilités et autorisation de publicité au prix de 26 712 €. Hors droit d'enregistrement et frais de notaire. Maison proposée, avec un contrat de construction de maison individuelle, dans le cadre de la loi du 19/12/1990, au prix de 116 388 € (Hors branchements et raccordements, papiers peints, peintures, revêtement de sol dans les chambres, qui sont chiffrés dans les travaux qui restent à charge du client. Tarif modifiable sans préavis). Étiquette énergie : A. Différents modèles disponibles pour ce terrain. Assurances et garanties du constructeur comprises (RC professionnelle, décennale, dommage ouvrage).
Les informations sur les risques auxquels ce bien est exposé sont disponibles sur le site Géorisques : www.georisques.gouv.fr
MAISON 3 PIÈCES NEUVE
À 41 km de la côte atlantique, Maisons Tradilignes La Roche-sur-Yon vous présente cette maison de 3 pièces de plain-pied de 66 m² et de 636 m² de terrain à Bourneau (85200).
Conçue de plain-pied, elle dispose de deux chambres, d'une cuisine et d'une salle de bains. La maison est neuve.
L'École Primaire Publique à l'Orée des Bois est implantée à moins de 10 minutes à pied. On trouve un accès à l'autoroute A83 à 10 km.
Son prix de vente est de 143 100 €.
. Donnez vie à vos projets immobiliers avec Maisons Tradilignes La Roche-sur-Yon.
Référence : MC2316628_1
Terrain proposé par un partenaire foncier selon disponibilités et autorisation de publicité au prix de 26 712 €. Hors droit d'enregistrement et frais de notaire. Maison proposée, avec un contrat de construction de maison individuelle, dans le cadre de la loi du 19/12/1990, au prix de 116 388 € (Hors branchements et raccordements, papiers peints, peintures, revêtement de sol dans les chambres, qui sont chiffrés dans les travaux qui restent à charge du client. Tarif modifiable sans préavis). Étiquette énergie : A. Différents modèles disponibles pour ce terrain. Assurances et garanties du constructeur comprises (RC professionnelle, décennale, dommage ouvrage).
Les informations sur les risques auxquels ce bien est exposé sont disponibles sur le site Géorisques : www.georisques.gouv.fr
- Prix
-
- Prix total : 143 100 €
- Prix du modèle de maison : 116 388 €
- Prix du terrain : 26 712 €
- Terrain
-
- Surface : 636 m²
- Maison
-
- Surface : 66 m²
- Pièces : 3
- Chambres : 2
- Être rappelé par un conseiller
- Demander plus d’infos
- Demande d'information
Bourneau (85200)
Maisons à proximité
Maison neuve, 68 m²
Bourneau (85200)
Bourneau (85200)
Maison de 3 pièces
Maison neuve, 84 m²
Bourneau (85200)
Bourneau (85200)
Maison de 4 pièces
Maison neuve, 82 m²
Bourneau (85200)
Bourneau (85200)
Maison de 4 pièces
Maison neuve, 68 m²
Bourneau (85200)
Bourneau (85200)
Maison de 3 pièces
Maison neuve, 66 m²
Bourneau (85200)
Bourneau (85200)
Maison de 3 pièces
Maison neuve, 62 m²
Bourneau (85200)
Bourneau (85200)
Maison de 3 pièces
Programmes à proximité
Les Hauts de Fontenay
Fontenay-le-Comte (85200)
Fontenay-le-Comte (85200)
Appartements de 2 à 3 pièces
Livraison 4ème trimestre 2027
Contacter MAISONS TRADILIGNES pour recevoir plus d'informations
Remplissez le formulaire ci-dessous, vos informations sont transmises directement au constructeur qui vous contactera par email ou par téléphone afin de traiter votre demande. En savoir plus.