Maison neuve, 154 m² - Boullay-les-Troux (91470)

481 950 €
Boullay-les-Troux (91470)

Proposée par BABEAU SEGUIN AGENCE DE MELUN -SEINE ET MARNE (77) – 5 pièces - 4 chambres - terrain 465 m²

Babeau Seguin Agence de Melun -Seine et Marne (77)
Babeau Seguin Agence de Melun -Seine et Marne (77)
  • Demande d'information
MAISON À CONSTRUIRE : ceci est une annonce d'une maison neuve à construire.
Sur ce terrain, nous vous proposons cette maison neuve : la Chatelière. Conçue par Babeau-Seguin, constructeur offrant le meilleur rapport qualité/prix du marché, cette maison de prestige saura vous séduire dès le premier regard.
### Une somptueuse maison de prestige
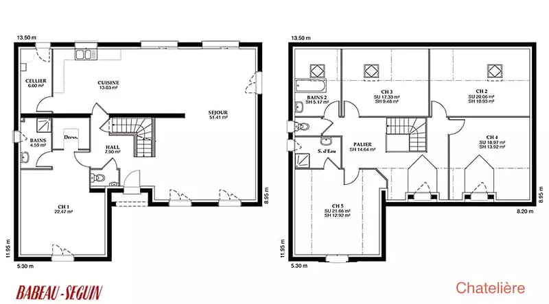
Tout est dans son nom ! La Chatelière a vraiment tout d'une grande maison familiale de prestige. Avec une surface généreuse de 154 m², cette maison offre tout l'espace dont vous avez besoin pour vivre confortablement.
### Un intérieur idéal et bien conçu
À l'intérieur, vous serez immédiatement conquis par le plancher de l'étage en béton ainsi que la charpente traditionnelle qui lui donnent une belle impression de solidité et de qualité. La distribution des pièces, comprenant 4 chambres et 4 pièces principales, ainsi que les trois salles d'eau et/ou de bains, sont élégamment conçues pour répondre à tous vos besoins en matière de confort et de relaxation.
### Un équilibre parfait entre confort et design
La Chatelière est bien plus qu'une simple maison de prestige. C'est un véritable modèle de fusion entre confort et design. Tout a été conçu pour répondre aux attentes de ceux qui recherchent un équilibre parfait entre les beaux volumes intérieurs et des lignes modernes parfaites.
### Une maison basse consommation et conforme à la RE2020
Cette maison neuve est basse consommation et conforme à la RE2020, garantissant ainsi une performance énergétique optimale et un respect des normes environnementales les plus récentes.
Optez pour ce prestigieux modèle à étage ! La Chatelière, avec ses 154 m² dans son écrin alliant luxe et design, vous propose 4 belles chambres ainsi qu’un vaste séjour. Véritable icône du bon goût, elle est personnalisable en fonction de vos besoins.
Ne manquez pas cette opportunité unique de vivre dans une maison qui allie prestige, confort et modernité. Contactez-nous dès aujourd'hui pour plus d'informations.
Référence : 92130

Les informations sur les risques auxquels ce bien est exposé sont disponibles sur le site Géorisques : www.georisques.gouv.fr


Prix
  • Prix total : 481 950 €
  • Prix du modèle de maison : 266 951 €
  • Prix du terrain : 214 999 €

Terrain
  • Surface : 465 m²

Maison
  • Surface : 154 m²
  • Pièces : 5
  • Chambres : 4

  • Être rappelé par un conseiller
  • Demander plus d’infos
  • Demande d'information
Boullay-les-Troux (91470)

Programmes à proximité

LA VALLÉE DES TILLEULS
LA VALLÉE DES TILLEULS
Chevreuse (78460)

Appartements de 3 à 4 pièces et maisons de 5 pièces
Livraison 1er trimestre 2025

Villa Gloriette
Villa Gloriette
Bonnelles (78830)

Appartements de 1 à 4 pièces et maisons de 4 pièces
Livraison 2ème trimestre 2027

Parenthèse
Parenthèse
Gif-sur-Yvette (91190)

Appartements de 2 à 4 pièces
Livraison 1er trimestre 2027

LES JARDINS DU MOULON
LES JARDINS DU MOULON
Gif-sur-Yvette (91190)

Appartements de 2 à 5 pièces
Livraison 3ème trimestre 2027

Clos de L'Yvette
Clos de L'Yvette
Gif-sur-Yvette (91190)

Appartements de 2 à 5 pièces
Livraison 2ème trimestre 2026

Contacter BABEAU SEGUIN AGENCE DE MELUN -SEINE ET MARNE (77) pour recevoir plus d'informations

Remplissez le formulaire ci-dessous, vos informations sont transmises directement au constructeur qui vous contactera par email ou par téléphone afin de traiter votre demande. En savoir plus.

Voir tous nos programmes immobiliers neufs à Boullay-les-Troux