Maison neuve, 97 m² - Borne (43350)
236 700 €
Borne (43350)
Proposée par MAISON ET JARDIN – 5 pièces - 4 chambres - terrain 1 300 m²
|
|
| Maison et Jardin |
- Demande d'information
- Prendre rendez-vous
MAISON À CONSTRUIRE : ceci est une annonce d'une maison neuve à construire.
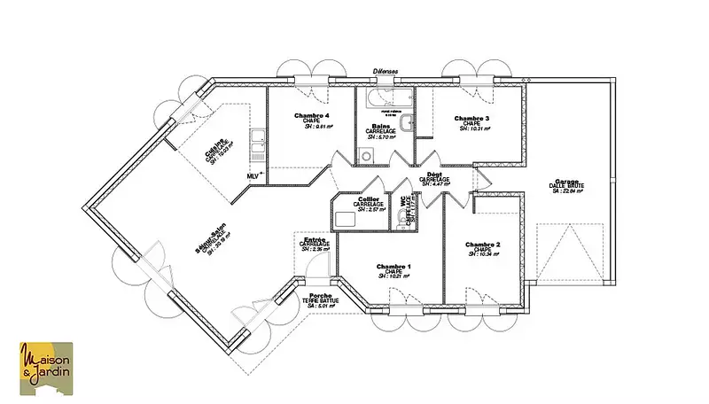
Nous vous proposons cette maison neuve, baptisée Cristalia, un modèle de résidence qui allie élégance, confort et respect de l'environnement. Conçue pour répondre aux attentes des plus exigeants, Cristalia offre une surface habitable de 97 m², parfaitement répartie entre 4 chambres lumineuses et 5 pièces à vivre, promettant ainsi un cadre de vie idéal pour toute la famille.
Cette maison se distingue par son architecture moderne, avec une option de toiture à 2 ou 4 pans, selon vos préférences, et un garage intégré pour plus de commodité. Son design extérieur est complété par une toiture de 2 à 3 versants, ajoutant un charme indéniable à l'ensemble. L'intérieur n'est pas en reste, offrant un salon séjour spacieux et ouvert sur l'extérieur, invitant la lumière naturelle à chaque moment de la journée et renforçant le lien avec la nature environnante.
L'aménagement intérieur a été pensé pour être à la fois moderne et très fonctionnel, répondant ainsi aux besoins de la vie contemporaine. La possibilité de personnaliser votre espace selon vos goûts et vos besoins est un atout majeur, vous permettant de créer un foyer qui vous ressemble vraiment.
Cristalia est également une maison basse consommation, conçue dans le strict respect de la norme RE2020. Cette caractéristique garantit une efficacité énergétique optimale, réduisant ainsi vos factures d'énergie tout en contribuant à la protection de l'environnement. C'est une maison qui s'inscrit dans l'avenir, offrant confort et durabilité.
Choisir Cristalia, c'est opter pour une maison qui combine esthétique, fonctionnalité et respect de l'environnement. Une maison où chaque détail a été pensé pour votre bien-être et celui de votre famille. Ne manquez pas l'opportunité de construire la maison de vos rêves, une maison qui vous accompagnera dans tous les moments importants de votre vie.
Référence : 15805
Les informations sur les risques auxquels ce bien est exposé sont disponibles sur le site Géorisques : www.georisques.gouv.fr
Cette maison se distingue par son architecture moderne, avec une option de toiture à 2 ou 4 pans, selon vos préférences, et un garage intégré pour plus de commodité. Son design extérieur est complété par une toiture de 2 à 3 versants, ajoutant un charme indéniable à l'ensemble. L'intérieur n'est pas en reste, offrant un salon séjour spacieux et ouvert sur l'extérieur, invitant la lumière naturelle à chaque moment de la journée et renforçant le lien avec la nature environnante.
L'aménagement intérieur a été pensé pour être à la fois moderne et très fonctionnel, répondant ainsi aux besoins de la vie contemporaine. La possibilité de personnaliser votre espace selon vos goûts et vos besoins est un atout majeur, vous permettant de créer un foyer qui vous ressemble vraiment.
Cristalia est également une maison basse consommation, conçue dans le strict respect de la norme RE2020. Cette caractéristique garantit une efficacité énergétique optimale, réduisant ainsi vos factures d'énergie tout en contribuant à la protection de l'environnement. C'est une maison qui s'inscrit dans l'avenir, offrant confort et durabilité.
Choisir Cristalia, c'est opter pour une maison qui combine esthétique, fonctionnalité et respect de l'environnement. Une maison où chaque détail a été pensé pour votre bien-être et celui de votre famille. Ne manquez pas l'opportunité de construire la maison de vos rêves, une maison qui vous accompagnera dans tous les moments importants de votre vie.
Référence : 15805
Les informations sur les risques auxquels ce bien est exposé sont disponibles sur le site Géorisques : www.georisques.gouv.fr
- Prix
-
- Prix total : 236 700 €
- Prix du modèle de maison : 181 700 €
- Prix du terrain : 55 000 €
- Terrain
-
- Surface : 1 300 m²
- Maison
-
- Surface : 97 m²
- Pièces : 5
- Chambres : 4
- Être rappelé par un conseiller
- Demander plus d’infos
- Demande d'information
Borne (43350)
Maisons à proximité
Maison neuve, 91 m²
Borne (43350)
Borne (43350)
Maison de 5 pièces
Maison neuve, 85 m²
Polignac (43000)
Polignac (43000)
Maison de 4 pièces
Maison neuve, 95 m²
Espaly-Saint-Marcel (43000)
Espaly-Saint-Marcel (43000)
Maison de 5 pièces
Maison neuve, 89 m²
Lavoûte-sur-Loire (43800)
Lavoûte-sur-Loire (43800)
Maison de 4 pièces
Maison neuve, 85 m²
Saint-Vincent (43800)
Saint-Vincent (43800)
Maison de 4 pièces
Maison neuve, 75 m²
Saint-Vincent (43800)
Saint-Vincent (43800)
Maison de 4 pièces
Programmes à proximité
Contacter MAISON ET JARDIN pour recevoir plus d'informations
Remplissez le formulaire ci-dessous, vos informations sont transmises directement au constructeur qui vous contactera par email ou par téléphone afin de traiter votre demande. En savoir plus.