Maison neuve, 60 m² - Bonchamp-lès-Laval (53960)

178 300 €
Bonchamp-lès-Laval (53960)

Proposée par MAISONS FRANCE CONFORT – 3 pièces - 2 chambres - terrain 261 m²

MAISONS FRANCE CONFORT
MAISONS FRANCE CONFORT
  • Demande d'information
MAISON À CONSTRUIRE : ceci est une annonce d'une maison neuve à construire.
VENTE : maison T3 (60 m²) à Bonchamp-lès-Laval
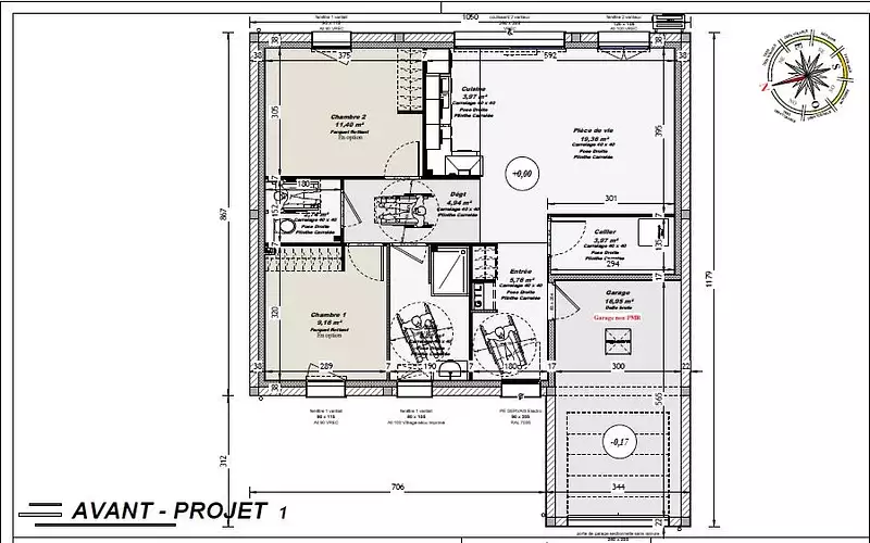
Idéalement située - En vente à Bonchamp-lès-Laval (53960) : maison neuve 3 pièces de 60 m² sur un terrain de 261 m². Conçue de plain-pied, elle inclut deux chambres, une cuisine et une salle de bains.
Proche gares (Laval et Louverné), écoles, bibliothèque, boulangeries, commerces, supermarché, boucherie-charcuterie et bureau de poste. Autoroute A81 et nationale N162 accessibles à 5 km. Laval à 6 km.
Le prix de vente de cette maison de 3 pièces est de 178 300 €.
.
Référence : CF2363249_6
Terrain proposé par un partenaire foncier selon disponibilités et autorisation de publicité au prix de 38 900 €. Hors droit d'enregistrement et frais de notaire. Terrain + Maison proposés au prix de 139 400 € (Hors branchements et raccordements, papiers peints, peintures, revêtement de sol dans les chambres. Tarif modifiable sans préavis). Etiquette énergie : A. Différents modèles disponibles pour ce terrain. . HEXAOM Services est enregistré auprès de l'ORIAS en tant que Courtier en financement, Niveau 1, sous le numéro 14001345.

Les informations sur les risques auxquels ce bien est exposé sont disponibles sur le site Géorisques : www.georisques.gouv.fr


Prix
  • Prix total : 178 300 €
  • Prix du modèle de maison : 139 400 €
  • Prix du terrain : 38 900 €

Terrain
  • Surface : 261 m²

Maison
  • Surface : 60 m²
  • Pièces : 3
  • Chambres : 2
  • Garage : 1

  • Être rappelé par un conseiller
  • Demander plus d’infos
  • Demande d'information
Bonchamp-lès-Laval (53960)

Programmes à proximité

ANGORA
ANGORA
Laval (53000)

Appartements de 2 à 4 pièces
Livraison 3ème trimestre 2026

Nouveauté aux portes de Laval
Nouveauté aux portes de Laval
Louverné (53950)

Appartements de 2 à 4 pièces
Livraison 4ème trimestre 2025

COEUR SIMEON - PSLA
COEUR SIMEON - PSLA
L'Huisserie (53970)

Appartements de 2 à 3 pièces
Livraison 3ème trimestre 2026

COEUR SIMÉON
COEUR SIMÉON
L'Huisserie (53970)

Appartements de 2 à 3 pièces
Livraison 4ème trimestre 2026

Les Allées de Sévigné
Les Allées de Sévigné
Saint-Berthevin (53940)

Appartements de 2 à 4 pièces
Livraison 1er trimestre 2028

Contacter MAISONS FRANCE CONFORT pour recevoir plus d'informations

Remplissez le formulaire ci-dessous, vos informations sont transmises directement au constructeur qui vous contactera par email ou par téléphone afin de traiter votre demande. En savoir plus.

Voir tous nos programmes immobiliers neufs à Bonchamp-lès-Laval