Maison neuve, 101 m² - Biard (86580)
279 071 €
Biard (86580)
Proposée par BABEAU SEGUIN AGENCE DE POITIERS – VIENNE – 4 pièces - 3 chambres - terrain 309 m²
|
|
| Babeau Seguin Agence de Poitiers – Vienne |
- Demande d'information
- Prendre rendez-vous
MAISON À CONSTRUIRE : ceci est une annonce d'une maison neuve à construire.
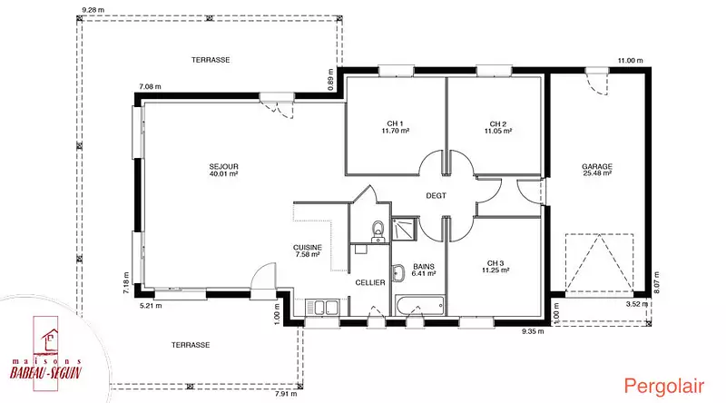
Sur ce terrain, nous vous proposons cette maison neuve, la Pergolair, une maison de plain-pied contemporaine entièrement pensée et dessinée par notre équipe. Avec une surface de 101 m², cette maison dispose de 3 chambres et de 4 pièces, offrant un espace de vie confortable et fonctionnel.
La Pergolair se distingue par son design moderne et ses caractéristiques principales : un garage intégré, un toit plat et une pergola, qui ajoutent une touche d'élégance et de praticité à l'ensemble. De plus, les options les plus demandées par nos clients, telles que le bardage bois et les menuiseries en aluminium, sont disponibles pour personnaliser votre maison selon vos goûts.
Cette maison neuve est également basse consommation et conforme à la réglementation environnementale RE2020, garantissant une performance énergétique optimale et un respect de l'environnement.
Faites confiance à Babeau-Seguin, constructeur offrant le meilleur rapport qualité/prix du marché, pour réaliser votre projet de vie avec la Pergolair. Une maison design et basse consommation que vous ne croiserez nulle part ailleurs, avec la qualité et le prix Babeau-Seguin !
Référence : 68165
Les informations sur les risques auxquels ce bien est exposé sont disponibles sur le site Géorisques : www.georisques.gouv.fr
La Pergolair se distingue par son design moderne et ses caractéristiques principales : un garage intégré, un toit plat et une pergola, qui ajoutent une touche d'élégance et de praticité à l'ensemble. De plus, les options les plus demandées par nos clients, telles que le bardage bois et les menuiseries en aluminium, sont disponibles pour personnaliser votre maison selon vos goûts.
Cette maison neuve est également basse consommation et conforme à la réglementation environnementale RE2020, garantissant une performance énergétique optimale et un respect de l'environnement.
Faites confiance à Babeau-Seguin, constructeur offrant le meilleur rapport qualité/prix du marché, pour réaliser votre projet de vie avec la Pergolair. Une maison design et basse consommation que vous ne croiserez nulle part ailleurs, avec la qualité et le prix Babeau-Seguin !
Référence : 68165
Les informations sur les risques auxquels ce bien est exposé sont disponibles sur le site Géorisques : www.georisques.gouv.fr
- Prix
-
- Prix total : 279 071 €
- Prix du modèle de maison : 235 171 €
- Prix du terrain : 43 900 €
- Terrain
-
- Surface : 309 m²
- Maison
-
- Surface : 101 m²
- Pièces : 4
- Chambres : 3
- Être rappelé par un conseiller
- Demander plus d’infos
- Demande d'information
Biard (86580)
Maisons à proximité
Maison neuve, 93 m²
Biard (86580)
Biard (86580)
Maison de 5 pièces
Maison neuve, 80 m²
Biard (86580)
Biard (86580)
Maison de 4 pièces
Maison neuve, 73 m²
Biard (86580)
Biard (86580)
Maison de 4 pièces
Maison neuve, 117 m²
Biard (86580)
Biard (86580)
Maison de 4 pièces
Maison neuve, 94 m²
Biard (86580)
Biard (86580)
Maison de 5 pièces
Maison neuve, 107 m²
Biard (86580)
Biard (86580)
Maison de 5 pièces
Programmes à proximité
Le Hameau de Marguerite
Vouneuil-sous-Biard (86580)
Vouneuil-sous-Biard (86580)
Appartements de 1 à 3 pièces
Livraison 2ème trimestre 2027
MERILEGE
Poitiers (86000)
Poitiers (86000)
Appartements de 2 à 4 pièces
Livraison 2ème trimestre 2028
LES ALLEES DU GOLF
Poitiers (86000)
Poitiers (86000)
Appartements de 2 à 4 pièces
Livraison 4ème trimestre 2026
Vertuo
Poitiers (86000)
Poitiers (86000)
Appartements de 1 à 3 pièces
Livraison 3ème trimestre 2027
Le Jardin du Cèdre
Poitiers (86000)
Poitiers (86000)
Appartement de 4 pièces
Livraison 4ème trimestre 2025
Contacter BABEAU SEGUIN AGENCE DE POITIERS – VIENNE pour recevoir plus d'informations
Remplissez le formulaire ci-dessous, vos informations sont transmises directement au constructeur qui vous contactera par email ou par téléphone afin de traiter votre demande. En savoir plus.