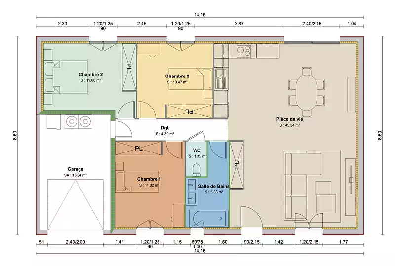
Maison neuve, 89 m² - Bévenais (38690)
235 000 €
Bévenais (38690)
Proposée par MAISONS PUNCH BOURGOIN JALLIEU – 4 pièces - 3 chambres - terrain 620 m²
|
|
| Maisons Punch Bourgoin Jallieu |
| (79 avis) |
- Demande d'information
- Prendre rendez-vous
MAISON À CONSTRUIRE : ceci est une annonce d'une maison neuve à construire.
Nouveau
Et si vous construisiez la maison de vos rêves ? "
Imaginez une maison parfaitement adaptée à votre style de vie, pensée selon vos envies et construite pour votre confort.
Plus qu'un projet, c'est une aventure unique ou chaque détail compte :
- Un accompagnement de A a Z
- Un design à votre image
- un espace optimisé pour votre bien-être
- Des Matériaux modernes et durables
- Une vraie valeur patrimoniale
Avec Mme Fahem Najoie Maison Punch Bourgon Jallieu , construisez bien plus qu'une maison ; créez un foyer ou grandir, partager et s'épanouir
Contactez moi dès aujourd'hui et donnons vie à votre projet
tél 06 37 41 29 00 Prix inclus terrain , maison, Vrd , viabilisation
Référence : 13345 FAHEM NAJOIE
Terrain proposé et vendu par notre partenaire foncier selon disponibilités, le constructeur n’étant pas mandaté pour réaliser la vente du terrain. Prix terrain inclus : 80 000 € Frais de notaire non inclus : € Prix maison inclus : 155 000 € VRD non inclus : € Hors aménagements extérieurs (extensions, terrasse, piscine etc), papiers peints, peintures, moquettes dans les chambres (tarif en vigueur au 20 mai 2025, modifiable sans préavis, prix variables suivant les prestations souhaitées). Hors frais d’hypothèque. Différents modèles disponibles pour chaque terrain. Assurance RC professionnelle/décennale/dommage ouvrage groupe Aviva. Garantie de remboursement de l'acompte/livraison à prix et délai convenu CGI. Partenaire financier : à préciser Le numéro de TVA intracommunautaire : FR 14 498 627 272 00012 Contact : contact@maisons-punch.fr
Les informations sur les risques auxquels ce bien est exposé sont disponibles sur le site Géorisques : www.georisques.gouv.fr
Et si vous construisiez la maison de vos rêves ? "
Imaginez une maison parfaitement adaptée à votre style de vie, pensée selon vos envies et construite pour votre confort.
Plus qu'un projet, c'est une aventure unique ou chaque détail compte :
- Un accompagnement de A a Z
- Un design à votre image
- un espace optimisé pour votre bien-être
- Des Matériaux modernes et durables
- Une vraie valeur patrimoniale
Avec Mme Fahem Najoie Maison Punch Bourgon Jallieu , construisez bien plus qu'une maison ; créez un foyer ou grandir, partager et s'épanouir
Contactez moi dès aujourd'hui et donnons vie à votre projet
tél 06 37 41 29 00 Prix inclus terrain , maison, Vrd , viabilisation
Référence : 13345 FAHEM NAJOIE
Terrain proposé et vendu par notre partenaire foncier selon disponibilités, le constructeur n’étant pas mandaté pour réaliser la vente du terrain. Prix terrain inclus : 80 000 € Frais de notaire non inclus : € Prix maison inclus : 155 000 € VRD non inclus : € Hors aménagements extérieurs (extensions, terrasse, piscine etc), papiers peints, peintures, moquettes dans les chambres (tarif en vigueur au 20 mai 2025, modifiable sans préavis, prix variables suivant les prestations souhaitées). Hors frais d’hypothèque. Différents modèles disponibles pour chaque terrain. Assurance RC professionnelle/décennale/dommage ouvrage groupe Aviva. Garantie de remboursement de l'acompte/livraison à prix et délai convenu CGI. Partenaire financier : à préciser Le numéro de TVA intracommunautaire : FR 14 498 627 272 00012 Contact : contact@maisons-punch.fr
Les informations sur les risques auxquels ce bien est exposé sont disponibles sur le site Géorisques : www.georisques.gouv.fr
- Prix
-
- Prix total : 235 000 €
- Prix du modèle de maison : 155 000 €
- Prix du terrain : 80 000 €
- Terrain
-
- Surface : 620 m²
- Maison
-
- Surface : 89 m²
- Pièces : 4
- Chambres : 3
- Salle de bains : 1
- Garage : 1
- Surface garage : 15 m²
- Être rappelé par un conseiller
- Demander plus d’infos
- Demande d'information
Bévenais (38690)
Maisons à proximité
Maison neuve, 89 m²
Le Grand-Lemps (38690)
Le Grand-Lemps (38690)
Maison de 4 pièces
Maison neuve, 114 m²
Le Grand-Lemps (38690)
Le Grand-Lemps (38690)
Maison de 4 pièces
Maison neuve, 86 m²
Le Grand-Lemps (38690)
Le Grand-Lemps (38690)
Maison de 4 pièces
Maison neuve, 111 m²
Le Grand-Lemps (38690)
Le Grand-Lemps (38690)
Maison de 4 pièces
Maison neuve, 89 m²
La Frette (38260)
La Frette (38260)
Maison de 4 pièces
Maison neuve, 120 m²
La Frette (38260)
La Frette (38260)
Maison de 5 pièces
Programmes à proximité
LES SOURCES D'AINAN
Chirens (38850)
Chirens (38850)
Appartements de 3 à 4 pièces
LES ROBINSONS
Tullins (38210)
Tullins (38210)
Appartements de 2 à 5 pièces
Livraison 1er trimestre 2028
LE SERICA - BAT C
Moirans (38430)
Moirans (38430)
Appartements de 1 à 4 pièces
Le Licio
Moirans (38430)
Moirans (38430)
Appartements de 3 à 4 pièces
Livraison 2ème trimestre 2026
Cristal - Belles Pierres - E
Voiron (38500)
Voiron (38500)
Appartements de 2 à 4 pièces
VERTUOSE
Voiron (38500)
Voiron (38500)
Appartements de 2 à 4 pièces
Livraison 2ème trimestre 2027
Contacter MAISONS PUNCH BOURGOIN JALLIEU pour recevoir plus d'informations
Remplissez le formulaire ci-dessous, vos informations sont transmises directement au constructeur qui vous contactera par email ou par téléphone afin de traiter votre demande. En savoir plus.