Maison neuve, 108 m² - Béruges (86190)
244 620 €
Béruges (86190)
Proposée par BABEAU SEGUIN AGENCE DE POITIERS – VIENNE – 5 pièces - 4 chambres - terrain 985 m²
|
|
| Babeau Seguin Agence de Poitiers – Vienne |
- Demande d'information
- Prendre rendez-vous
MAISON À CONSTRUIRE : ceci est une annonce d'une maison neuve à construire.
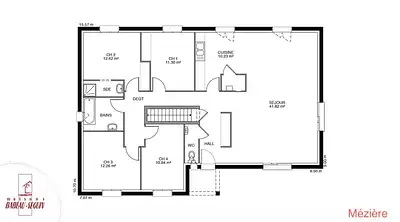
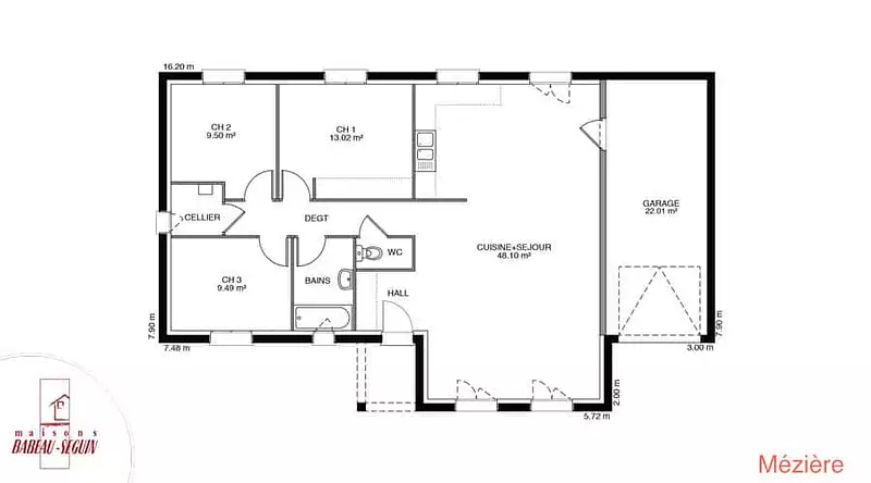
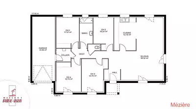
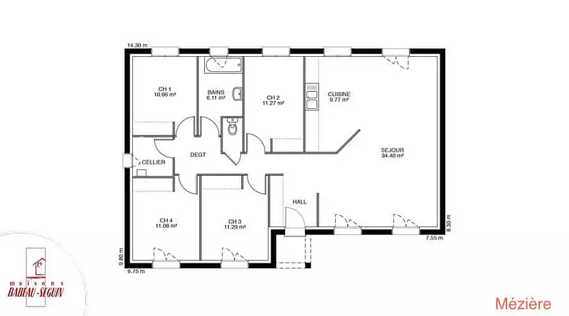
Sur ce terrain, nous vous proposons cette maison neuve, la Mézière Sud, conçue par Babeau-Seguin, constructeur offrant le meilleur rapport qualité/prix du marché. Superbe maison typique du sud, inspirée du modèle à succès Mézière de chez Maisons Babeau-Seguin, cette demeure de 108 m² saura répondre à toutes vos attentes.
La Mézière Sud se distingue par son plan en L, offrant une disposition harmonieuse et fonctionnelle. Vous avez le choix entre une toiture à 2 pans ou 4 pans, selon vos préférences esthétiques. La maison comprend 4 chambres spacieuses et 4 pièces, idéales pour accueillir une famille nombreuse ou pour disposer de plusieurs espaces de vie.
Parmi les caractéristiques principales, vous trouverez un garage ou un sous-sol, ainsi qu'un porche accueillant pour vos moments de détente en extérieur. Les options les plus demandées par nos clients, telles que les menuiseries en aluminium et la piscine, sont également disponibles pour personnaliser votre maison selon vos envies.
Cette maison neuve est basse consommation et conforme à la RE2020, garantissant une performance énergétique optimale et un respect des normes environnementales actuelles. Vous pourrez ainsi profiter d'un confort de vie exceptionnel tout en réalisant des économies d'énergie.
Véritable coup de cœur pour de nombreux clients Babeau-Seguin, la Mézière Sud est facilement modifiable pour s'adapter à vos besoins spécifiques, ce qui justifie pleinement son succès. N'attendez plus pour découvrir cette maison d'exception et concrétiser votre projet de vie dans un cadre idyllique.
Référence : 90716
Les informations sur les risques auxquels ce bien est exposé sont disponibles sur le site Géorisques : www.georisques.gouv.fr
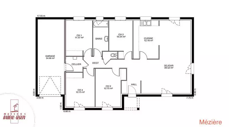
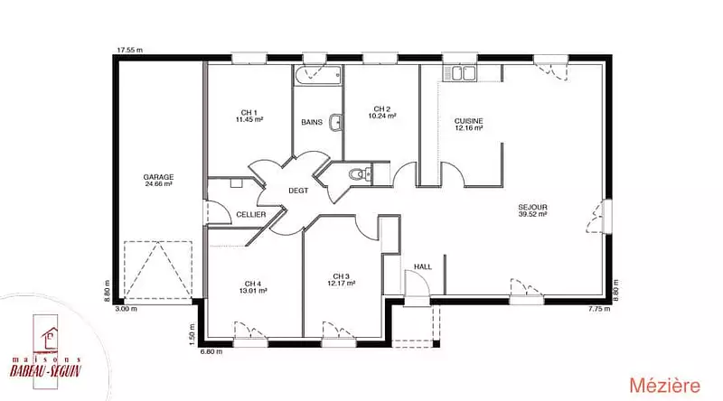
La Mézière Sud se distingue par son plan en L, offrant une disposition harmonieuse et fonctionnelle. Vous avez le choix entre une toiture à 2 pans ou 4 pans, selon vos préférences esthétiques. La maison comprend 4 chambres spacieuses et 4 pièces, idéales pour accueillir une famille nombreuse ou pour disposer de plusieurs espaces de vie.
Parmi les caractéristiques principales, vous trouverez un garage ou un sous-sol, ainsi qu'un porche accueillant pour vos moments de détente en extérieur. Les options les plus demandées par nos clients, telles que les menuiseries en aluminium et la piscine, sont également disponibles pour personnaliser votre maison selon vos envies.
Cette maison neuve est basse consommation et conforme à la RE2020, garantissant une performance énergétique optimale et un respect des normes environnementales actuelles. Vous pourrez ainsi profiter d'un confort de vie exceptionnel tout en réalisant des économies d'énergie.
Véritable coup de cœur pour de nombreux clients Babeau-Seguin, la Mézière Sud est facilement modifiable pour s'adapter à vos besoins spécifiques, ce qui justifie pleinement son succès. N'attendez plus pour découvrir cette maison d'exception et concrétiser votre projet de vie dans un cadre idyllique.
Référence : 90716
Les informations sur les risques auxquels ce bien est exposé sont disponibles sur le site Géorisques : www.georisques.gouv.fr
- Prix
-
- Prix total : 244 620 €
- Prix du modèle de maison : 181 920 €
- Prix du terrain : 62 700 €
- Terrain
-
- Surface : 985 m²
- Maison
-
- Surface : 108 m²
- Pièces : 5
- Chambres : 4
- Être rappelé par un conseiller
- Demander plus d’infos
- Demande d'information
Béruges (86190)
Maisons à proximité
Maison neuve, 151 m²
Béruges (86190)
Béruges (86190)
Maison de 6 pièces
Maison neuve, 75 m²
Béruges (86190)
Béruges (86190)
Maison de 3 pièces
Maison neuve, 183 m²
Béruges (86190)
Béruges (86190)
Maison de 5 pièces
Maison neuve, 82 m²
Béruges (86190)
Béruges (86190)
Maison de 4 pièces
Maison neuve, 50 m²
Béruges (86190)
Béruges (86190)
Maison de 2 pièces
Maison neuve, 107 m²
Béruges (86190)
Béruges (86190)
Maison de 4 pièces
Programmes à proximité
Le Hameau de Marguerite
Vouneuil-sous-Biard (86580)
Vouneuil-sous-Biard (86580)
Appartements de 1 à 3 pièces
Livraison 2ème trimestre 2027
MERILEGE
Poitiers (86000)
Poitiers (86000)
Appartements de 2 à 4 pièces
Livraison 2ème trimestre 2028
LES ALLEES DU GOLF
Poitiers (86000)
Poitiers (86000)
Appartements de 2 à 4 pièces
Livraison 4ème trimestre 2026
Vertuo
Poitiers (86000)
Poitiers (86000)
Appartements de 1 à 3 pièces
Livraison 3ème trimestre 2027
Le Jardin du Cèdre
Poitiers (86000)
Poitiers (86000)
Appartement de 4 pièces
Livraison 4ème trimestre 2025
Contacter BABEAU SEGUIN AGENCE DE POITIERS – VIENNE pour recevoir plus d'informations
Remplissez le formulaire ci-dessous, vos informations sont transmises directement au constructeur qui vous contactera par email ou par téléphone afin de traiter votre demande. En savoir plus.