Maison neuve, 169 m² - Bertry (59980)
340 000 €
Bertry (59980)
Proposée par MAISONS FRANCE CONFORT – 5 pièces - 4 chambres - terrain 766 m²
|
|
| MAISONS FRANCE CONFORT |
- Demande d'information
- Prendre rendez-vous
MAISON À CONSTRUIRE : ceci est une annonce d'une maison neuve à construire.
Maison à construire à Bertry
EMPLACEMENT PRIVILÉGIÉ - MAISON NEUVE A CONSTRUIRE
VOTRE CONSEILLERE : Pauline GOMEZ - O6 19 56 27 71
Venez découvrir votre future maison neuve.
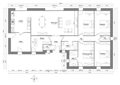
Il s'agit d'une maison de plain pied, d'une surface de 170 m².
Construction conforme aux dernières normes RE2020 (basse consommation) sur une base de mur en briques de terre cuite.
Mode de chauffage dernière génération via pompe à chaleur
Plans sur mesures et modifiables à la demande.
Cette maison dispose de trois chambres, d'une cuisine, d'une salle de bains, et un cellier.
Garanties et assurances obligatoires incluses (voir détails en agence).
Hors raccordements, hors branchements,
Terrain sélectionné et vu pour vous sous réserve de disponibilité et au prix indiqué par notre partenaire foncier.
A proximité des écoles et commerces de proximités.
Son prix de vente est de 340 000 € frais de notaire inclus sur le terrain.
Contactez Pauline GOMEZ (O6 19 56 27 71) pour toute information sur cette maison.
Pourquoi faire confiance à Maisons France confort ?
Maisons France Confort c'est le numéro 1 en France de la construction de maisons individuelles avec nos maisons personnalisables et qui s'adaptent à chaque budget.
C'est un accompagnement personnel dans toutes les démarches et étapes de votre projet immobilier (terrain, maison et financement entre autres).
Ensemble, construisons la maison qui vous ressemble !
Référence : PG2368773_1
Terrain proposé par un partenaire foncier selon disponibilités et autorisation de publicité au prix de 50 382 €. Hors droit d'enregistrement et frais de notaire. Terrain + Maison proposés au prix de 289 618 € (Hors branchements et raccordements, papiers peints, peintures, revêtement de sol dans les chambres. Tarif modifiable sans préavis). Etiquette énergie : A. Différents modèles disponibles pour ce terrain. Assurances et garanties du constructeur (RC professionnelle, décennale, dommage ouvrage, garantie de remboursement de l'acompte, livraison à prix et délai convenu) : https://www.maisons-france-confort.fr/mentions-legales/. HEXAOM Services est enregistré auprès de l'ORIAS en tant que Courtier en financement, Niveau 1, sous le numéro 14001345.
Les informations sur les risques auxquels ce bien est exposé sont disponibles sur le site Géorisques : www.georisques.gouv.fr
EMPLACEMENT PRIVILÉGIÉ - MAISON NEUVE A CONSTRUIRE
VOTRE CONSEILLERE : Pauline GOMEZ - O6 19 56 27 71
Venez découvrir votre future maison neuve.
Il s'agit d'une maison de plain pied, d'une surface de 170 m².
Construction conforme aux dernières normes RE2020 (basse consommation) sur une base de mur en briques de terre cuite.
Mode de chauffage dernière génération via pompe à chaleur
Plans sur mesures et modifiables à la demande.
Cette maison dispose de trois chambres, d'une cuisine, d'une salle de bains, et un cellier.
Garanties et assurances obligatoires incluses (voir détails en agence).
Hors raccordements, hors branchements,
Terrain sélectionné et vu pour vous sous réserve de disponibilité et au prix indiqué par notre partenaire foncier.
A proximité des écoles et commerces de proximités.
Son prix de vente est de 340 000 € frais de notaire inclus sur le terrain.
Contactez Pauline GOMEZ (O6 19 56 27 71) pour toute information sur cette maison.
Pourquoi faire confiance à Maisons France confort ?
Maisons France Confort c'est le numéro 1 en France de la construction de maisons individuelles avec nos maisons personnalisables et qui s'adaptent à chaque budget.
C'est un accompagnement personnel dans toutes les démarches et étapes de votre projet immobilier (terrain, maison et financement entre autres).
Ensemble, construisons la maison qui vous ressemble !
Référence : PG2368773_1
Terrain proposé par un partenaire foncier selon disponibilités et autorisation de publicité au prix de 50 382 €. Hors droit d'enregistrement et frais de notaire. Terrain + Maison proposés au prix de 289 618 € (Hors branchements et raccordements, papiers peints, peintures, revêtement de sol dans les chambres. Tarif modifiable sans préavis). Etiquette énergie : A. Différents modèles disponibles pour ce terrain. Assurances et garanties du constructeur (RC professionnelle, décennale, dommage ouvrage, garantie de remboursement de l'acompte, livraison à prix et délai convenu) : https://www.maisons-france-confort.fr/mentions-legales/. HEXAOM Services est enregistré auprès de l'ORIAS en tant que Courtier en financement, Niveau 1, sous le numéro 14001345.
Les informations sur les risques auxquels ce bien est exposé sont disponibles sur le site Géorisques : www.georisques.gouv.fr
- Prix
-
- Prix total : 340 000 €
- Prix du modèle de maison : 289 618 €
- Prix du terrain : 50 382 €
- Terrain
-
- Surface : 766 m²
- Maison
-
- Surface : 169 m²
- Pièces : 5
- Chambres : 4
- Être rappelé par un conseiller
- Demander plus d’infos
- Demande d'information
Bertry (59980)
Maisons à proximité
Maison neuve, 100 m²
Bertry (59980)
Bertry (59980)
Maison de 5 pièces
Maison neuve, 112,86 m²
Bertry (59980)
Bertry (59980)
Maison de 5 pièces
Maison neuve, 165 m²
Bertry (59980)
Bertry (59980)
Maison de 6 pièces
Maison neuve, 89,64 m²
Bertry (59980)
Bertry (59980)
Maison de 4 pièces
Maison neuve, 90,45 m²
Bertry (59980)
Bertry (59980)
Maison de 4 pièces
Maison neuve, 100 m²
Bertry (59980)
Bertry (59980)
Maison de 6 pièces
Programmes à proximité
Contacter MAISONS FRANCE CONFORT pour recevoir plus d'informations
Remplissez le formulaire ci-dessous, vos informations sont transmises directement au constructeur qui vous contactera par email ou par téléphone afin de traiter votre demande. En savoir plus.