Maison neuve, 75 m² - Bernay (27300)
192 800 €
Bernay (27300)
Proposée par MAISONS FRANCE CONFORT – 5 pièces - 3 chambres - terrain 2 700 m²
|
|
| MAISONS FRANCE CONFORT |
- Demande d'information
- Prendre rendez-vous
MAISON À CONSTRUIRE : ceci est une annonce d'une maison neuve à construire.
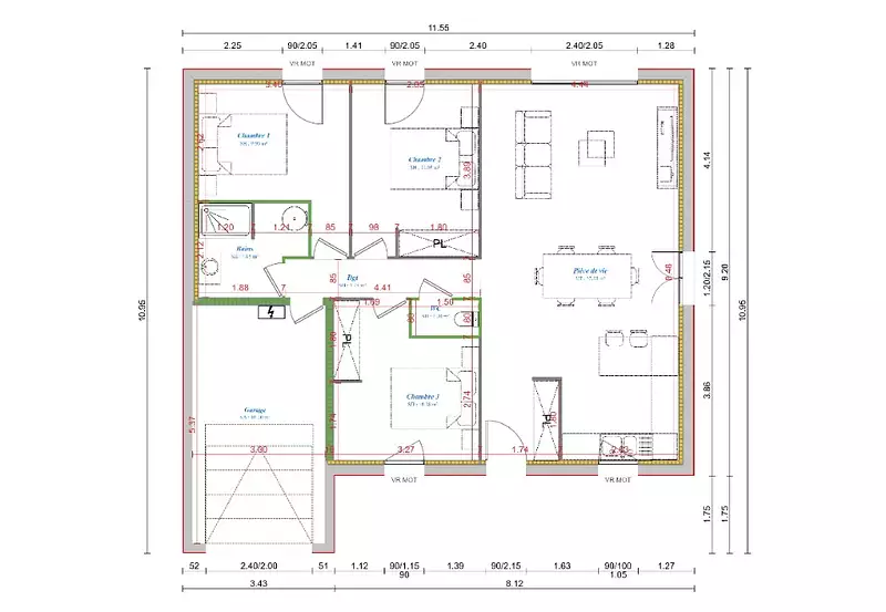
Maisons France Confort Lisieux vous propose de construire cette maison de plain pied de 78m².
Il se compose d'une entrée avec placard, une belle pièce de vie lumineuse
Dans l'espace nuit, 3 chambres et une salle de bain.
Un accès au garage depuis la maison.
Belles prestations :
- carrelage 45*45
- menuiserie encastrer à la maçonnerie
- volet roulant électrique somfy
- système de chauffage très économique Référence : AV2354575_1
Terrain proposé par un partenaire foncier selon disponibilités et autorisation de publicité au prix de 42 800 €. Hors droit d'enregistrement et frais de notaire. Maison proposée, avec un contrat de construction de maison individuelle, dans le cadre de la loi du 19/12/1990, au prix de 150 000 € (Hors branchements et raccordements, papiers peints, peintures, revêtement de sol dans les chambres, qui sont chiffrés dans les travaux qui restent à charge du client. Tarif modifiable sans préavis). Étiquette énergie : A. Différents modèles disponibles pour ce terrain. Assurances et garanties du constructeur comprises (RC professionnelle, décennale, dommage ouvrage).
Les informations sur les risques auxquels ce bien est exposé sont disponibles sur le site Géorisques : www.georisques.gouv.fr
Il se compose d'une entrée avec placard, une belle pièce de vie lumineuse
Dans l'espace nuit, 3 chambres et une salle de bain.
Un accès au garage depuis la maison.
Belles prestations :
- carrelage 45*45
- menuiserie encastrer à la maçonnerie
- volet roulant électrique somfy
- système de chauffage très économique Référence : AV2354575_1
Terrain proposé par un partenaire foncier selon disponibilités et autorisation de publicité au prix de 42 800 €. Hors droit d'enregistrement et frais de notaire. Maison proposée, avec un contrat de construction de maison individuelle, dans le cadre de la loi du 19/12/1990, au prix de 150 000 € (Hors branchements et raccordements, papiers peints, peintures, revêtement de sol dans les chambres, qui sont chiffrés dans les travaux qui restent à charge du client. Tarif modifiable sans préavis). Étiquette énergie : A. Différents modèles disponibles pour ce terrain. Assurances et garanties du constructeur comprises (RC professionnelle, décennale, dommage ouvrage).
Les informations sur les risques auxquels ce bien est exposé sont disponibles sur le site Géorisques : www.georisques.gouv.fr
- Prix
-
- Prix total : 192 800 €
- Prix du modèle de maison : 150 000 €
- Prix du terrain : 42 800 €
- Terrain
-
- Surface : 2 700 m²
- Maison
-
- Surface : 75 m²
- Pièces : 5
- Chambres : 3
- Garage : 1
- Être rappelé par un conseiller
- Demander plus d’infos
- Demande d'information
Bernay (27300)
Maisons à proximité
Le Clos du Mascrier - Maisons
Bernay (27300)
Bernay (27300)
Maisons de 4 à 6 pièces
Livraison 4ème trimestre 2026
Maison neuve, 88,56 m²
Bernay (27300)
Bernay (27300)
Maison de 4 pièces
Maison neuve, 89 m²
Bernay (27300)
Bernay (27300)
Maison de 6 pièces
Maison neuve, 95 m²
Bernay (27300)
Bernay (27300)
Maison de 6 pièces
Maison neuve, 107,05 m²
Bernay (27300)
Bernay (27300)
Maison de 4 pièces
Maison neuve, 90 m²
Bernay (27300)
Bernay (27300)
Maison de 6 pièces
Programmes à proximité
Les Jardins de la Charentonne
Bernay (27300)
Bernay (27300)
Appartements de 2 à 4 pièces
Livraison 2ème trimestre 2027
Contacter MAISONS FRANCE CONFORT pour recevoir plus d'informations
Remplissez le formulaire ci-dessous, vos informations sont transmises directement au constructeur qui vous contactera par email ou par téléphone afin de traiter votre demande. En savoir plus.