Maison neuve, 89 m² - Beaumont-le-Roger (27170)
177 064 €
Beaumont-le-Roger (27170)
Proposée par MAISONS FRANCE CONFORT – 6 pièces - 4 chambres - terrain 796 m²
|
|
| MAISONS FRANCE CONFORT |
- Demande d'information
- Prendre rendez-vous
MAISON À CONSTRUIRE : ceci est une annonce d'une maison neuve à construire.
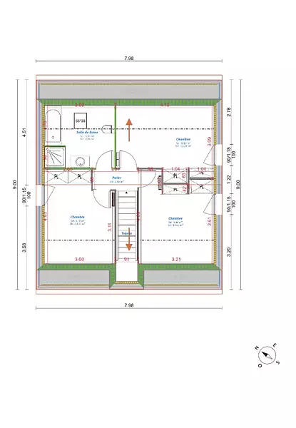
Maison de 89m² habitable
Elle se compose d'une belle pièces de vie ouverte, avec un cellier et une chambre au rdc.
A l'étage 3 chambres et une salle de bain.
Prestations :
Carrelage 45*45
volets roulants encastrée à la maçonnerie + électrique Somfy
Parquet dans les chambres Référence : AV2354504_1
Terrain proposé par un partenaire foncier selon disponibilités et autorisation de publicité au prix de 27 064 €. Hors droit d'enregistrement et frais de notaire. Maison proposée, avec un contrat de construction de maison individuelle, dans le cadre de la loi du 19/12/1990, au prix de 150 000 € (Hors branchements et raccordements, papiers peints, peintures, revêtement de sol dans les chambres, qui sont chiffrés dans les travaux qui restent à charge du client. Tarif modifiable sans préavis). Étiquette énergie : A. Différents modèles disponibles pour ce terrain. Assurances et garanties du constructeur comprises (RC professionnelle, décennale, dommage ouvrage).
Les informations sur les risques auxquels ce bien est exposé sont disponibles sur le site Géorisques : www.georisques.gouv.fr
Elle se compose d'une belle pièces de vie ouverte, avec un cellier et une chambre au rdc.
A l'étage 3 chambres et une salle de bain.
Prestations :
Carrelage 45*45
volets roulants encastrée à la maçonnerie + électrique Somfy
Parquet dans les chambres Référence : AV2354504_1
Terrain proposé par un partenaire foncier selon disponibilités et autorisation de publicité au prix de 27 064 €. Hors droit d'enregistrement et frais de notaire. Maison proposée, avec un contrat de construction de maison individuelle, dans le cadre de la loi du 19/12/1990, au prix de 150 000 € (Hors branchements et raccordements, papiers peints, peintures, revêtement de sol dans les chambres, qui sont chiffrés dans les travaux qui restent à charge du client. Tarif modifiable sans préavis). Étiquette énergie : A. Différents modèles disponibles pour ce terrain. Assurances et garanties du constructeur comprises (RC professionnelle, décennale, dommage ouvrage).
Les informations sur les risques auxquels ce bien est exposé sont disponibles sur le site Géorisques : www.georisques.gouv.fr
- Prix
-
- Prix total : 177 064 €
- Prix du modèle de maison : 150 000 €
- Prix du terrain : 27 064 €
- Terrain
-
- Surface : 796 m²
- Maison
-
- Surface : 89 m²
- Pièces : 6
- Chambres : 4
- Être rappelé par un conseiller
- Demander plus d’infos
- Demande d'information
Beaumont-le-Roger (27170)
Maisons à proximité
Maison neuve, 106 m²
Beaumont-le-Roger (27170)
Beaumont-le-Roger (27170)
Maison de 5 pièces
Maison neuve, 50 m²
Beaumont-le-Roger (27170)
Beaumont-le-Roger (27170)
Maison de 4 pièces
Maison neuve, 91 m²
Beaumont-le-Roger (27170)
Beaumont-le-Roger (27170)
Maison de 7 pièces
Maison neuve, 90 m²
Beaumont-le-Roger (27170)
Beaumont-le-Roger (27170)
Maison de 5 pièces
Maison neuve, 160 m²
Beaumont-le-Roger (27170)
Beaumont-le-Roger (27170)
Maison de 7 pièces
Maison neuve, 75 m²
Beaumont-le-Roger (27170)
Beaumont-le-Roger (27170)
Maison de 5 pièces
Programmes à proximité
Les Jardins de la Charentonne
Bernay (27300)
Bernay (27300)
Appartements de 2 à 4 pièces
Livraison 2ème trimestre 2027
Contacter MAISONS FRANCE CONFORT pour recevoir plus d'informations
Remplissez le formulaire ci-dessous, vos informations sont transmises directement au constructeur qui vous contactera par email ou par téléphone afin de traiter votre demande. En savoir plus.
Voir tous nos programmes immobiliers neufs à Beaumont-le-Roger