Maison neuve - Baugy (18800)
257 905 €
Baugy (18800)
Proposée par STYL HABITAT AGENCE DE BOURGES (18) – 5 pièces - 4 chambres - terrain 1 026 m²
|
|
| Styl habitat Agence de Bourges (18) |
- Demande d'information
- Prendre rendez-vous
MAISON À CONSTRUIRE : ceci est une annonce d'une maison neuve à construire.
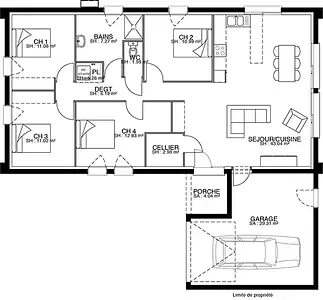
Nous vous proposons cette maison neuve, baptisée ""Ambre"", un modèle d'exception qui allie élégance et fonctionnalité, conçu par un architecte de renom. Avec une surface habitable de 102.5 m², cette demeure est idéalement pensée pour offrir confort et bien-être à ses résidents.
L'habitation se distingue par ses 4 chambres spacieuses, promettant intimité et tranquillité à chaque membre de la famille. Les 4 pièces de la maison sont réparties de manière à optimiser l'espace et la lumière naturelle, créant ainsi une atmosphère chaleureuse et accueillante dès le seuil franchi.
Le modèle ""Ambre"" intègre un garage, solution pratique et esthétique, qui s'harmonise parfaitement avec l'architecture globale de la maison. Ce garage intégré offre non seulement un espace de stationnement sécurisé pour votre véhicule mais aussi un accès direct à l'intérieur pour plus de commodité.
Construite dans le respect des dernières normes environnementales, cette maison neuve est un véritable modèle de basse consommation. Conforme à la RE2020, elle garantit une efficacité énergétique optimale, réduisant ainsi les dépenses énergétiques tout en préservant l'environnement. Ce choix responsable traduit notre engagement envers un avenir plus durable, offrant aux propriétaires une qualité de vie inégalée et des économies significatives sur le long terme.
L'architecture de la maison ""Ambre"" a été pensée pour s'intégrer harmonieusement dans son environnement, avec des lignes épurées et modernes. Chaque détail a été soigneusement étudié pour répondre aux attentes des plus exigeants, alliant esthétique et fonctionnalité.
En choisissant la maison ""Ambre"", vous optez pour un cadre de vie exceptionnel, où chaque jour est une invitation au confort et au bien-être. Ne manquez pas cette opportunité de construire la maison de vos rêves, une demeure qui vous ressemble et qui répond à toutes vos attentes.
Référence : 13654
Les informations sur les risques auxquels ce bien est exposé sont disponibles sur le site Géorisques : www.georisques.gouv.fr
L'habitation se distingue par ses 4 chambres spacieuses, promettant intimité et tranquillité à chaque membre de la famille. Les 4 pièces de la maison sont réparties de manière à optimiser l'espace et la lumière naturelle, créant ainsi une atmosphère chaleureuse et accueillante dès le seuil franchi.
Le modèle ""Ambre"" intègre un garage, solution pratique et esthétique, qui s'harmonise parfaitement avec l'architecture globale de la maison. Ce garage intégré offre non seulement un espace de stationnement sécurisé pour votre véhicule mais aussi un accès direct à l'intérieur pour plus de commodité.
Construite dans le respect des dernières normes environnementales, cette maison neuve est un véritable modèle de basse consommation. Conforme à la RE2020, elle garantit une efficacité énergétique optimale, réduisant ainsi les dépenses énergétiques tout en préservant l'environnement. Ce choix responsable traduit notre engagement envers un avenir plus durable, offrant aux propriétaires une qualité de vie inégalée et des économies significatives sur le long terme.
L'architecture de la maison ""Ambre"" a été pensée pour s'intégrer harmonieusement dans son environnement, avec des lignes épurées et modernes. Chaque détail a été soigneusement étudié pour répondre aux attentes des plus exigeants, alliant esthétique et fonctionnalité.
En choisissant la maison ""Ambre"", vous optez pour un cadre de vie exceptionnel, où chaque jour est une invitation au confort et au bien-être. Ne manquez pas cette opportunité de construire la maison de vos rêves, une demeure qui vous ressemble et qui répond à toutes vos attentes.
Référence : 13654
Les informations sur les risques auxquels ce bien est exposé sont disponibles sur le site Géorisques : www.georisques.gouv.fr
- Prix
-
- Prix total : 257 905 €
- Prix du modèle de maison : 215 105 €
- Prix du terrain : 42 800 €
- Terrain
-
- Surface : 1 026 m²
- Maison
-
- Pièces : 5
- Chambres : 4
- Être rappelé par un conseiller
- Demander plus d’infos
- Demande d'information
Baugy (18800)
Maisons à proximité
Maison neuve, 87 m²
Baugy (18800)
Baugy (18800)
Maison de 4 pièces
Maison neuve, 100 m²
Baugy (18800)
Baugy (18800)
Maison de 5 pièces
Maison neuve, 85 m²
Baugy (18800)
Baugy (18800)
Maison de 4 pièces
Maison neuve, 81 m²
Baugy (18800)
Baugy (18800)
Maison de 4 pièces
Maison neuve, 60 m²
Baugy (18800)
Baugy (18800)
Maison de 4 pièces
Maison neuve, 110 m²
Baugy (18800)
Baugy (18800)
Maison de 5 pièces
Programmes à proximité
Dans un écrin historique à 8 min* du centre
Bourges (18000)
Bourges (18000)
Appartement de 2 pièces
Livraison 3ème trimestre 2026
Carré Voltaire
Bourges (18000)
Bourges (18000)
Appartements de 1 à 4 pièces
Livraison 1er trimestre 2028
Contacter STYL HABITAT AGENCE DE BOURGES (18) pour recevoir plus d'informations
Remplissez le formulaire ci-dessous, vos informations sont transmises directement au constructeur qui vous contactera par email ou par téléphone afin de traiter votre demande. En savoir plus.