Maison neuve, 111 m² - Bassillac et Auberoche (24330)
239 725 €
Bassillac et Auberoche (24330)
Proposée par MAISONS OMEGA AGENCE DE PÉRIGUEUX – 5 pièces - 4 chambres - terrain 1 193 m²
|
|
| Maisons Omega Agence de Périgueux |
| (17 avis) |
- Demande d'information
- Prendre rendez-vous
MAISON À CONSTRUIRE : ceci est une annonce d'une maison neuve à construire.
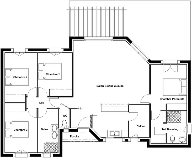
Sur ce terrain, nous vous proposons cette maison neuve : le modèle Cazaux, une maison traditionnelle de plain-pied conçue par Maisons Omega, détenteur du label Maisons de Qualité.
Un charme énorme pour ce plain-pied de 4 chambres avec suite parentale, comportant un bel espace de vie et un coin nuit enfants. Sa surface de 111 m² est largement suffisante pour accueillir toute votre famille dans de grands volumes intelligemment pensés. Les parents disposeront d’un espace isolé des chambres enfants, avec dressing et salle d’eau. Le salon-séjour central et traversant, avec cuisine américaine, est aussi spacieux que lumineux. Ce modèle dispose également d’un cellier.
Espace et originalité pour cette belle demeure sur un seul niveau. C’est un modèle doté d’une entrée protégée par un porche ainsi qu’une pergola, idéale pour profiter des beaux jours. Il est disponible avec un toit à 2 ou 4 pans et des volets roulants ou battants. En option, il est possible d’ajouter un carport, une des options les plus demandées par nos clients.
Cette maison neuve est basse consommation et conforme à la RE2020, garantissant ainsi des performances énergétiques optimales et un confort de vie inégalé.
Ne manquez pas cette opportunité unique de devenir propriétaire d'une maison moderne, économe en énergie et parfaitement adaptée à vos besoins. Contactez-nous dès aujourd'hui pour plus d'informations !
Référence : 12344
Les informations sur les risques auxquels ce bien est exposé sont disponibles sur le site Géorisques : www.georisques.gouv.fr
Un charme énorme pour ce plain-pied de 4 chambres avec suite parentale, comportant un bel espace de vie et un coin nuit enfants. Sa surface de 111 m² est largement suffisante pour accueillir toute votre famille dans de grands volumes intelligemment pensés. Les parents disposeront d’un espace isolé des chambres enfants, avec dressing et salle d’eau. Le salon-séjour central et traversant, avec cuisine américaine, est aussi spacieux que lumineux. Ce modèle dispose également d’un cellier.
Espace et originalité pour cette belle demeure sur un seul niveau. C’est un modèle doté d’une entrée protégée par un porche ainsi qu’une pergola, idéale pour profiter des beaux jours. Il est disponible avec un toit à 2 ou 4 pans et des volets roulants ou battants. En option, il est possible d’ajouter un carport, une des options les plus demandées par nos clients.
Cette maison neuve est basse consommation et conforme à la RE2020, garantissant ainsi des performances énergétiques optimales et un confort de vie inégalé.
Ne manquez pas cette opportunité unique de devenir propriétaire d'une maison moderne, économe en énergie et parfaitement adaptée à vos besoins. Contactez-nous dès aujourd'hui pour plus d'informations !
Référence : 12344
Les informations sur les risques auxquels ce bien est exposé sont disponibles sur le site Géorisques : www.georisques.gouv.fr
- Prix
-
- Prix total : 239 725 €
- Prix du modèle de maison : 206 000 €
- Prix du terrain : 33 725 €
- Terrain
-
- Surface : 1 193 m²
- Maison
-
- Surface : 111 m²
- Pièces : 5
- Chambres : 4
- Être rappelé par un conseiller
- Demander plus d’infos
- Demande d'information
Bassillac et Auberoche (24330)
Maisons à proximité
Maison neuve, 90 m²
Bassillac et Auberoche (24330)
Bassillac et Auberoche (24330)
Maison de 5 pièces
Maison neuve, 100 m²
Bassillac et Auberoche (24330)
Bassillac et Auberoche (24330)
Maison de 4 pièces
Maison neuve, 90 m²
Bassillac et Auberoche (24330)
Bassillac et Auberoche (24330)
Maison de 4 pièces
Maison neuve, 81 m²
Bassillac et Auberoche (24330)
Bassillac et Auberoche (24330)
Maison de 4 pièces
Maison neuve, 86 m²
Bassillac et Auberoche (24330)
Bassillac et Auberoche (24330)
Maison de 4 pièces
Maison neuve, 81 m²
Bassillac et Auberoche (24330)
Bassillac et Auberoche (24330)
Maison de 4 pièces
Programmes à proximité
Habitez à 5 min du centre-ville
Périgueux (24000)
Périgueux (24000)
Appartements de 2 à 4 pièces
Livraison 1er trimestre 2027
Contacter MAISONS OMEGA AGENCE DE PÉRIGUEUX pour recevoir plus d'informations
Remplissez le formulaire ci-dessous, vos informations sont transmises directement au constructeur qui vous contactera par email ou par téléphone afin de traiter votre demande. En savoir plus.
Voir tous nos programmes immobiliers neufs à Bassillac et Auberoche