Maison neuve, 85 m² - Bassan (34290)
242 000 €
Bassan (34290)
Proposée par MAISONS DE MANON – 5 pièces - 3 chambres - terrain 386 m²
|
|
| MAISONS DE MANON |
- Demande d'information
- Prendre rendez-vous
MAISON À CONSTRUIRE : ceci est une annonce d'une maison neuve à construire.
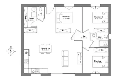
PROJET DE CONSTRUCTION - Bassan : maison de 5 pièces (85 m²)
MAISON 5 PIÈCES - PROCHE DE BÉZIERS
À vendre : à 18 km de la côte méditerranéenne et à 7 km de Béziers, laissez vous charmer par cette maison de 5 pièces de plain-pied de 85 m² à Bassan (34290). Conçue de plain-pied, elle propose trois chambres, une cuisine, un cellier et une salle de bains.
Le terrain de la propriété est de 386 m².
(Carrelage inclus dans toutes les pièces / Raccordements inclus).
Il y a une école primaire dans le quartier. Côté transports en commun, on trouve deux gares (Magalas et Béziers) à moins de 10 minutes en voiture. Les autoroutes A75 et A9 sont accessibles à moins de 9 km. Il y a un tennis, une boulangerie, un commerce et une épicerie à quelques minutes à peine.
Elle est à vendre pour la somme de 242 000 €.
. (Plan personnalisable). Tous nos ouvrages sont réalisés sur-mesure en fonction de vos attentes et de nos échanges avec vous ainsi que dans le respect de la règlementation RE 2020. Ce projet comporte les garanties suivantes: Contrat de construction CCMI. Dommage/Ouvrage. RC Garantie décennale. Parfaite achèvement. Etude de sol G2. Prix et délais convenu. Garantie de livraison. Garantie financière Pour votre tranquillité nous nous occupons de toutes les formalités administratives.
Référence : AB2392514_4
Terrain proposé par un partenaire foncier selon disponibilités et autorisation de publicité au prix de 109 900 €. Hors droit d'enregistrement et frais de notaire. Terrain + Maison proposés au prix de 132 100 € (Hors branchements et raccordements, papiers peints, peintures, revêtement de sol dans les chambres. Tarif modifiable sans préavis). Etiquette énergie : A. Différents modèles disponibles pour ce terrain. . HEXAOM Services est enregistré auprès de l'ORIAS en tant que Courtier en financement, Niveau 1, sous le numéro 14001345.
Les informations sur les risques auxquels ce bien est exposé sont disponibles sur le site Géorisques : www.georisques.gouv.fr
MAISON 5 PIÈCES - PROCHE DE BÉZIERS
À vendre : à 18 km de la côte méditerranéenne et à 7 km de Béziers, laissez vous charmer par cette maison de 5 pièces de plain-pied de 85 m² à Bassan (34290). Conçue de plain-pied, elle propose trois chambres, une cuisine, un cellier et une salle de bains.
Le terrain de la propriété est de 386 m².
(Carrelage inclus dans toutes les pièces / Raccordements inclus).
Il y a une école primaire dans le quartier. Côté transports en commun, on trouve deux gares (Magalas et Béziers) à moins de 10 minutes en voiture. Les autoroutes A75 et A9 sont accessibles à moins de 9 km. Il y a un tennis, une boulangerie, un commerce et une épicerie à quelques minutes à peine.
Elle est à vendre pour la somme de 242 000 €.
. (Plan personnalisable). Tous nos ouvrages sont réalisés sur-mesure en fonction de vos attentes et de nos échanges avec vous ainsi que dans le respect de la règlementation RE 2020. Ce projet comporte les garanties suivantes: Contrat de construction CCMI. Dommage/Ouvrage. RC Garantie décennale. Parfaite achèvement. Etude de sol G2. Prix et délais convenu. Garantie de livraison. Garantie financière Pour votre tranquillité nous nous occupons de toutes les formalités administratives.
Référence : AB2392514_4
Terrain proposé par un partenaire foncier selon disponibilités et autorisation de publicité au prix de 109 900 €. Hors droit d'enregistrement et frais de notaire. Terrain + Maison proposés au prix de 132 100 € (Hors branchements et raccordements, papiers peints, peintures, revêtement de sol dans les chambres. Tarif modifiable sans préavis). Etiquette énergie : A. Différents modèles disponibles pour ce terrain. . HEXAOM Services est enregistré auprès de l'ORIAS en tant que Courtier en financement, Niveau 1, sous le numéro 14001345.
Les informations sur les risques auxquels ce bien est exposé sont disponibles sur le site Géorisques : www.georisques.gouv.fr
- Prix
-
- Prix total : 242 000 €
- Prix du modèle de maison : 132 100 €
- Prix du terrain : 109 900 €
- Terrain
-
- Surface : 386 m²
- Maison
-
- Surface : 85 m²
- Pièces : 5
- Chambres : 3
- Garage : 1
- Être rappelé par un conseiller
- Demander plus d’infos
- Demande d'information
Bassan (34290)
Maisons à proximité
Maison neuve, 72 m²
Bassan (34290)
Bassan (34290)
Maison de 4 pièces
Maison neuve, 50 m²
Bassan (34290)
Bassan (34290)
Maison de 3 pièces
Maison neuve, 60 m²
Bassan (34290)
Bassan (34290)
Maison de 3 pièces
Maison neuve
Bassan (34290)
Bassan (34290)
Maison
Maison neuve, 90 m²
Bassan (34290)
Bassan (34290)
Maison de 4 pièces
Maison neuve, 95 m²
Bassan (34290)
Bassan (34290)
Maison de 5 pièces
Programmes à proximité
Ovéa
Béziers (34500)
Béziers (34500)
Appartements de 2 à 4 pièces
Livraison 3ème trimestre 2026
Les CINQ SENS
Béziers (34500)
Béziers (34500)
Appartements de 2 à 4 pièces
Livraison 4ème trimestre 2026
Perles d'ô
Béziers (34500)
Béziers (34500)
Appartements de 3 à 4 pièces
Livraison 2ème trimestre 2026
Egérie
Béziers (34500)
Béziers (34500)
Appartements de 3 à 4 pièces
Livraison 3ème trimestre 2026
LE PATIO DU MIDI
Béziers (34500)
Béziers (34500)
Appartements de 2 à 4 pièces
Arborea
Sauvian (34410)
Sauvian (34410)
Appartement de 3 pièces
Livraison 3ème trimestre 2024
Contacter MAISONS DE MANON pour recevoir plus d'informations
Remplissez le formulaire ci-dessous, vos informations sont transmises directement au constructeur qui vous contactera par email ou par téléphone afin de traiter votre demande. En savoir plus.