Maison neuve, 111 m² - Bar-sur-Aube (10200)
171 982 €
Bar-sur-Aube (10200)
Proposée par BABEAU SEGUIN AGENCE DE VENDEUVRE-SUR-BARSE (10140 – 5 pièces - 4 chambres - terrain 648 m²
|
|
| Babeau Seguin Agence de Vendeuvre-Sur-Barse (10140 |
- Demande d'information
- Prendre rendez-vous
MAISON À CONSTRUIRE : ceci est une annonce d'une maison neuve à construire.
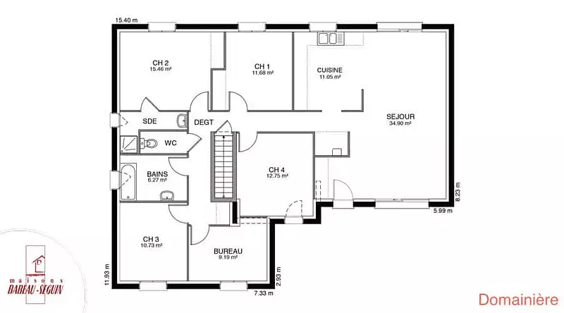
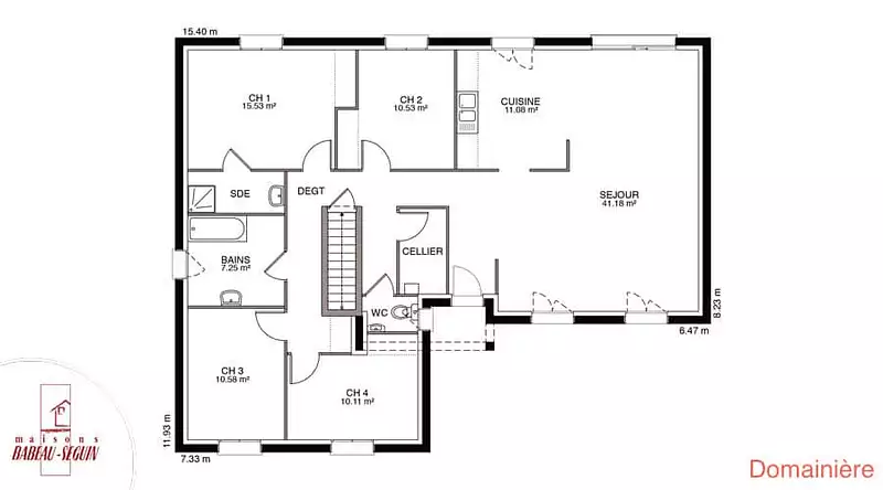
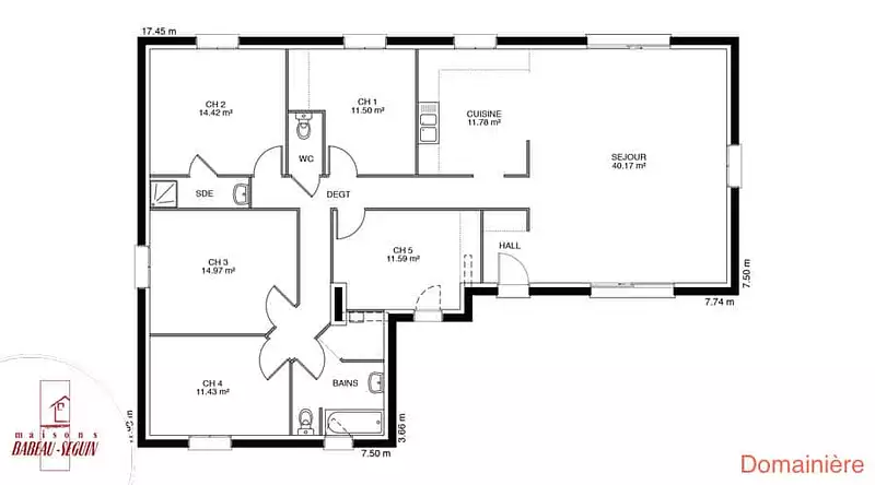
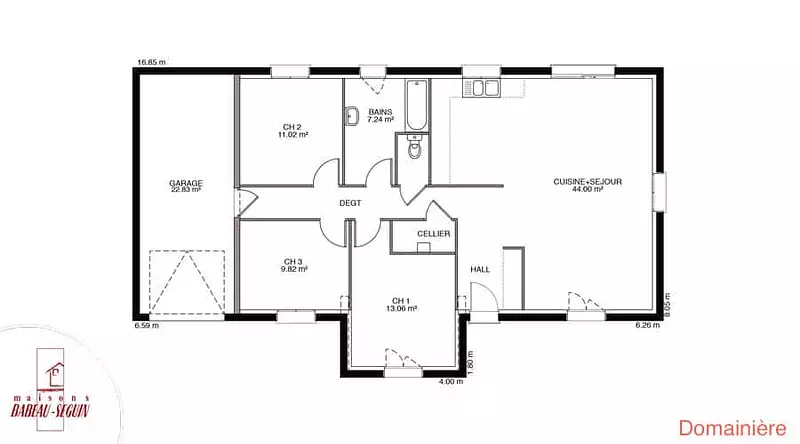
Sur ce terrain, nous vous proposons cette maison neuve : la Domainière. Comme son nom l'indique, la Domainière est une maison traditionnelle familiale se distinguant par sa tour centrale, lui conférant un cachet irrésistible. Ce modèle de plain-pied droit ou en « L » est déclinable en combles perdus ou à étage, offrant ainsi une grande flexibilité pour s'adapter à vos besoins.
Avec une surface de 111 m², cette maison dispose de 4 chambres et de 4 pièces, offrant un espace de vie confortable et fonctionnel pour toute la famille. Vous avez également le choix entre une toiture à 2 pans ou à 4 pans, ainsi que la possibilité d'ajouter un garage ou un sous-sol, selon vos préférences.
La Domainière est une maison basse consommation, conforme à la nouvelle réglementation RE2020, garantissant ainsi une performance énergétique optimale et un respect de l'environnement. Ce modèle est également disponible en version à étage pour encore plus de confort, à découvrir dans nos modèles à étage.
Le constructeur Babeau-Seguin, reconnu pour offrir le meilleur rapport qualité/prix du marché, vous propose cette maison qui allie esthétique et écologie. Ne manquez pas cette opportunité unique de devenir propriétaire d'une maison neuve, moderne et respectueuse de l'environnement. Contactez-nous dès maintenant pour plus d'informations et pour organiser une visite du terrain.
Référence : 40044
Les informations sur les risques auxquels ce bien est exposé sont disponibles sur le site Géorisques : www.georisques.gouv.fr
Avec une surface de 111 m², cette maison dispose de 4 chambres et de 4 pièces, offrant un espace de vie confortable et fonctionnel pour toute la famille. Vous avez également le choix entre une toiture à 2 pans ou à 4 pans, ainsi que la possibilité d'ajouter un garage ou un sous-sol, selon vos préférences.
La Domainière est une maison basse consommation, conforme à la nouvelle réglementation RE2020, garantissant ainsi une performance énergétique optimale et un respect de l'environnement. Ce modèle est également disponible en version à étage pour encore plus de confort, à découvrir dans nos modèles à étage.
Le constructeur Babeau-Seguin, reconnu pour offrir le meilleur rapport qualité/prix du marché, vous propose cette maison qui allie esthétique et écologie. Ne manquez pas cette opportunité unique de devenir propriétaire d'une maison neuve, moderne et respectueuse de l'environnement. Contactez-nous dès maintenant pour plus d'informations et pour organiser une visite du terrain.
Référence : 40044
Les informations sur les risques auxquels ce bien est exposé sont disponibles sur le site Géorisques : www.georisques.gouv.fr
- Prix
-
- Prix total : 171 982 €
- Prix du modèle de maison : 145 982 €
- Prix du terrain : 26 000 €
- Terrain
-
- Surface : 648 m²
- Maison
-
- Surface : 111 m²
- Pièces : 5
- Chambres : 4
- Être rappelé par un conseiller
- Demander plus d’infos
- Demande d'information
Bar-sur-Aube (10200)
Maisons à proximité
Maison neuve, 91 m²
Bar-sur-Aube (10200)
Bar-sur-Aube (10200)
Maison de 5 pièces
Maison neuve, 165 m²
Bar-sur-Aube (10200)
Bar-sur-Aube (10200)
Maison de 7 pièces
Maison neuve, 89 m²
Bar-sur-Aube (10200)
Bar-sur-Aube (10200)
Maison de 5 pièces
Maison neuve, 110 m²
Bar-sur-Aube (10200)
Bar-sur-Aube (10200)
Maison de 6 pièces
Maison neuve, 109 m²
Bar-sur-Aube (10200)
Bar-sur-Aube (10200)
Maison de 5 pièces
Maison neuve, 95 m²
Bar-sur-Aube (10200)
Bar-sur-Aube (10200)
Maison de 7 pièces
Programmes à proximité
Contacter BABEAU SEGUIN AGENCE DE VENDEUVRE-SUR-BARSE (10140 pour recevoir plus d'informations
Remplissez le formulaire ci-dessous, vos informations sont transmises directement au constructeur qui vous contactera par email ou par téléphone afin de traiter votre demande. En savoir plus.