Maison neuve, 110 m² - Ballon-Saint Mars (72290)
240 000 €
Ballon-Saint Mars (72290)
Proposée par MAISONS CONCEPT AGENCE DU MANS – 5 pièces - 4 chambres - terrain 700 m²
|
|
| Maisons Concept AGENCE DU MANS |
- Demande d'information
- Prendre rendez-vous
MAISON À CONSTRUIRE : ceci est une annonce d'une maison neuve à construire.
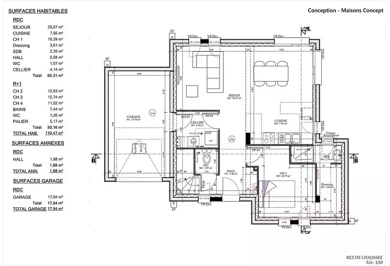
Sur ce terrain, nous vous proposons cette maison neuve : la Conception, un modèle exclusif signé Maisons Concept, constructeur reconnu pour offrir le meilleur rapport qualité/prix du marché.
Cette maison contemporaine à étage, d’une superficie de 110 m², allie lignes traditionnelles et touches de design moderne pour une esthétique épurée et captivante. La Conception se distingue par son architecture compacte et son garage accolé à toit plat, garantissant une intégration harmonieuse dans son environnement.
À l’intérieur, la Conception est pensée pour le confort et la fonctionnalité. Elle offre 4 chambres spacieuses dont une suite parentale, ainsi qu’une vaste pièce de vie ouverte, idéale pour partager des moments conviviaux en famille ou entre amis. La dalle béton à l’étage assure une isolation phonique et thermique optimale, renforçant le confort au quotidien.
Cette maison neuve est conforme à la norme RE2020, gage de basse consommation énergétique et de respect des exigences environnementales les plus récentes. Les options les plus plébiscitées, telles que la domotique ou les menuiseries aluminium, sont disponibles afin de personnaliser votre future maison selon vos envies.
Optez pour la Conception et découvrez une maison où chaque détail est pensé pour offrir une expérience de vie harmonieuse et moderne. Ne manquez pas cette opportunité unique de devenir propriétaire d’un modèle alliant élégance, praticité et performance énergétique.
Référence : 50384Les informations sur les risques auxquels ce bien est exposé sont disponibles sur le site Géorisques : www.georisques.gouv.fr
Cette maison contemporaine à étage, d’une superficie de 110 m², allie lignes traditionnelles et touches de design moderne pour une esthétique épurée et captivante. La Conception se distingue par son architecture compacte et son garage accolé à toit plat, garantissant une intégration harmonieuse dans son environnement.
À l’intérieur, la Conception est pensée pour le confort et la fonctionnalité. Elle offre 4 chambres spacieuses dont une suite parentale, ainsi qu’une vaste pièce de vie ouverte, idéale pour partager des moments conviviaux en famille ou entre amis. La dalle béton à l’étage assure une isolation phonique et thermique optimale, renforçant le confort au quotidien.
Cette maison neuve est conforme à la norme RE2020, gage de basse consommation énergétique et de respect des exigences environnementales les plus récentes. Les options les plus plébiscitées, telles que la domotique ou les menuiseries aluminium, sont disponibles afin de personnaliser votre future maison selon vos envies.
Optez pour la Conception et découvrez une maison où chaque détail est pensé pour offrir une expérience de vie harmonieuse et moderne. Ne manquez pas cette opportunité unique de devenir propriétaire d’un modèle alliant élégance, praticité et performance énergétique.
Référence : 50384Les informations sur les risques auxquels ce bien est exposé sont disponibles sur le site Géorisques : www.georisques.gouv.fr
- Prix
-
- Prix total : 240 000 €
- Prix du modèle de maison : 215 000 €
- Prix du terrain : 25 000 €
- Terrain
-
- Surface : 700 m²
- Maison
-
- Surface : 110 m²
- Pièces : 5
- Chambres : 4
- Être rappelé par un conseiller
- Demander plus d’infos
- Demande d'information
Ballon-Saint Mars (72290)
Maisons à proximité
Maison neuve, 110 m²
Ballon-Saint Mars (72290)
Ballon-Saint Mars (72290)
Maison de 5 pièces
Maison neuve, 112 m²
Ballon-Saint Mars (72290)
Ballon-Saint Mars (72290)
Maison de 5 pièces
Maison neuve, 72 m²
Ballon-Saint Mars (72290)
Ballon-Saint Mars (72290)
Maison de 4 pièces
Maison neuve, 72 m²
Montbizot (72380)
Montbizot (72380)
Maison de 4 pièces
Maison neuve, 126 m²
Montbizot (72380)
Montbizot (72380)
Maison de 5 pièces
Maison neuve, 73 m²
Montbizot (72380)
Montbizot (72380)
Maison de 4 pièces
Programmes à proximité
Néméa Le Mans Université
Le Mans (72000)
Le Mans (72000)
Appartements de 1 pièce
Livraison 2ème trimestre 2027
HARMONIE
Le Mans (72000)
Le Mans (72000)
Appartement de 4 pièces
Livraison 2ème trimestre 2026
LES BOSQUETS TR.1
Le Mans (72000)
Le Mans (72000)
Appartements de 1 à 4 pièces
Livraison 4ème trimestre 2027
Epsilon
Le Mans (72000)
Le Mans (72000)
Appartements de 1 à 3 pièces
Livraison 4ème trimestre 2027
Contacter MAISONS CONCEPT AGENCE DU MANS pour recevoir plus d'informations
Remplissez le formulaire ci-dessous, vos informations sont transmises directement au constructeur qui vous contactera par email ou par téléphone afin de traiter votre demande. En savoir plus.
Voir tous nos programmes immobiliers neufs à Ballon-Saint Mars