Maison neuve, 130 m² - Baignes-Sainte-Radegonde (16360)
280 300 €
Baignes-Sainte-Radegonde (16360)
Proposée par ALPHA CONSTRUCTIONS – 3 pièces - 3 chambres - terrain 1 500 m²
|
|
| Alpha Constructions |
- Demande d'information
- Prendre rendez-vous
MAISON À CONSTRUIRE : ceci est une annonce d'une maison neuve à construire.
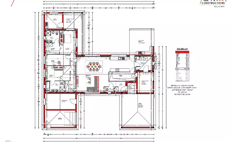
A découvrir sans tarder! Magnifique maison de 130m² offre un cadre paisible et verdoyant, alliant confort, espace et luminosité.
Composé de 3 chambres spacieuses, 2 salle de bain modernes, cuisine fonctionnelle, cuisine d'été, garage et un magnifique séjour traversant baigné dans la lumière. Idéalement située à la campagne tout en étant proche des commodités, cette maison séduit par sa luminosité naturelle, son agencement convivial et son environnement calme.
PLAN MODULABLE, MODE DE CHAUFFAGE PERFORMANT ET ECONOMIQUE, RE2020, MATERIAUX DE QUALITES. PLAN MODULABLE.
Contactez notre agence Alpha Constructions Cognac (Tony DAIGRE O6 15 20 16 38) pour plus de renseignements
Référence : TD2328214_1
Terrain proposé par un partenaire foncier selon disponibilité dans le cadre d’un projet de construction avec Alpha Constructions. Les descriptions, photographies, surfaces et prix illustrant l’annonce sont fournies à titre indicatif et ne sont pas contractuels. Non soumis au DPE. Différents modèles disponibles.
Les informations sur les risques auxquels ce bien est exposé sont disponibles sur le site Géorisques : www.georisques.gouv.fr
Composé de 3 chambres spacieuses, 2 salle de bain modernes, cuisine fonctionnelle, cuisine d'été, garage et un magnifique séjour traversant baigné dans la lumière. Idéalement située à la campagne tout en étant proche des commodités, cette maison séduit par sa luminosité naturelle, son agencement convivial et son environnement calme.
PLAN MODULABLE, MODE DE CHAUFFAGE PERFORMANT ET ECONOMIQUE, RE2020, MATERIAUX DE QUALITES. PLAN MODULABLE.
Contactez notre agence Alpha Constructions Cognac (Tony DAIGRE O6 15 20 16 38) pour plus de renseignements
Référence : TD2328214_1
Terrain proposé par un partenaire foncier selon disponibilité dans le cadre d’un projet de construction avec Alpha Constructions. Les descriptions, photographies, surfaces et prix illustrant l’annonce sont fournies à titre indicatif et ne sont pas contractuels. Non soumis au DPE. Différents modèles disponibles.
Les informations sur les risques auxquels ce bien est exposé sont disponibles sur le site Géorisques : www.georisques.gouv.fr
- Prix
-
- Prix total : 280 300 €
- Prix du modèle de maison : 256 300 €
- Prix du terrain : 24 000 €
- Terrain
-
- Surface : 1 500 m²
- Maison
-
- Surface : 130 m²
- Pièces : 3
- Chambres : 3
- Garage : 1
- Être rappelé par un conseiller
- Demander plus d’infos
- Demande d'information
Baignes-Sainte-Radegonde (16360)
Maisons à proximité
Maison neuve, 100 m²
Baignes-Sainte-Radegonde (16360)
Baignes-Sainte-Radegonde (16360)
Maison de 4 pièces
Maison neuve, 125 m²
Baignes-Sainte-Radegonde (16360)
Baignes-Sainte-Radegonde (16360)
Maison de 4 pièces
Maison neuve, 90 m²
Mortiers (17500)
Mortiers (17500)
Maison de 4 pièces
Maison neuve, 100 m²
Mérignac (17210)
Mérignac (17210)
Maison de 4 pièces
Maison neuve, 231 m²
Mérignac (17210)
Mérignac (17210)
Maison de 5 pièces
Maison neuve, 90 m²
Saint-Germain-de-Vibrac (17500)
Saint-Germain-de-Vibrac (17500)
Maison de 4 pièces
Programmes à proximité
Contacter ALPHA CONSTRUCTIONS pour recevoir plus d'informations
Remplissez le formulaire ci-dessous, vos informations sont transmises directement au constructeur qui vous contactera par email ou par téléphone afin de traiter votre demande. En savoir plus.
Voir tous nos programmes immobiliers neufs à Baignes-Sainte-Radegonde