Maison neuve, 109 m² - Aydoilles (88600)
214 560 €
Aydoilles (88600)
Proposée par BATILOR AGENCE D’ EPINAL (88000) – VOSGES – RÉGION – 5 pièces - 4 chambres - terrain 950 m²
|
|
| Batilor Agence d’ Epinal (88000) – Vosges – Région |
- Demande d'information
- Prendre rendez-vous
MAISON À CONSTRUIRE : ceci est une annonce d'une maison neuve à construire.
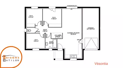
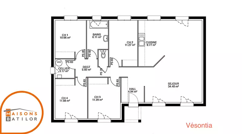
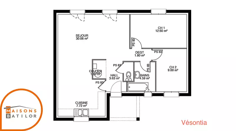
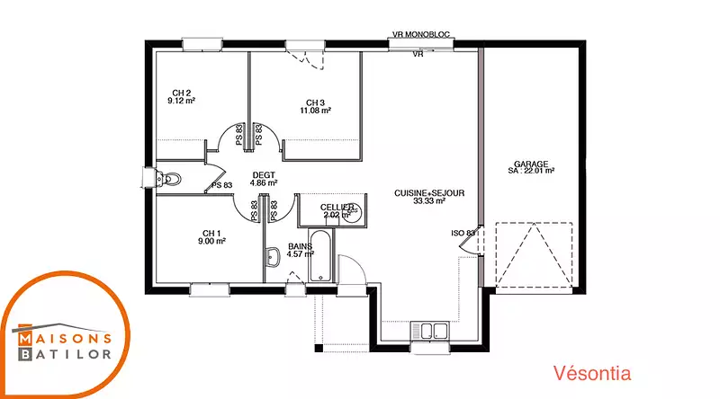
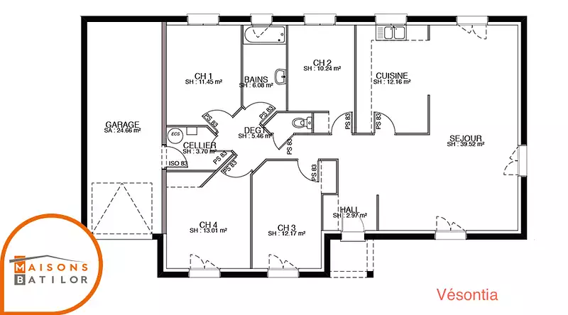
Nous vous proposons cette maison neuve, baptisée Vésontia, un modèle qui allie élégance, fonctionnalité et respect de l'environnement. Avec une surface généreuse de 109 m², cette maison de plain-pied en forme de L est conçue pour s'adapter harmonieusement à la vie de famille, tout en offrant des espaces de vie conviviaux et bien organisés.
La Vésontia se distingue par ses 4 chambres spacieuses et ses 4 pièces lumineuses, promettant confort et intimité à chaque membre de la famille. Le garage intégré assure une transition fluide entre l'extérieur et l'intérieur, tandis que le porche d'entrée accueille vos invités avec élégance et simplicité.
Conscients des besoins variés de nos clients, nous offrons la possibilité de personnaliser votre maison avec des options très demandées telles qu'un Car Port supplémentaire, un garage plus spacieux ou même un sous-sol, permettant ainsi de créer un espace qui reflète véritablement votre style de vie et vos préférences.
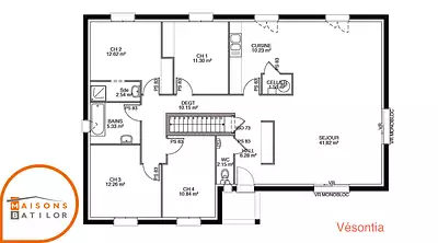
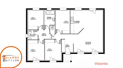
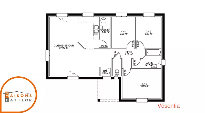
Avec 7 déclinaisons de base, la Vésontia est une invitation à concevoir une maison sur mesure à petit prix. Que vous rêviez d'un grand séjour pour vos réunions de famille, d'une suite parentale pour plus d'intimité, ou d'un bureau pour travailler en toute tranquillité, ce modèle s'adapte à toutes vos envies.
Au-delà de son design attrayant et de sa flexibilité, la Vésontia est une maison écolo de basse consommation, conforme à la réglementation thermique 2020 (RE2020). Cela signifie que vous bénéficierez non seulement d'un confort optimal en toutes saisons, mais aussi d'économies significatives sur vos factures d'énergie.
Choisir la Vésontia, c'est opter pour une maison qui respecte l'environnement tout en répondant à vos attentes de confort, de style et de fonctionnalité. Faites le premier pas vers la maison de vos rêves et laissez-nous vous accompagner dans cette belle aventure.
Référence : 23241
Les informations sur les risques auxquels ce bien est exposé sont disponibles sur le site Géorisques : www.georisques.gouv.fr
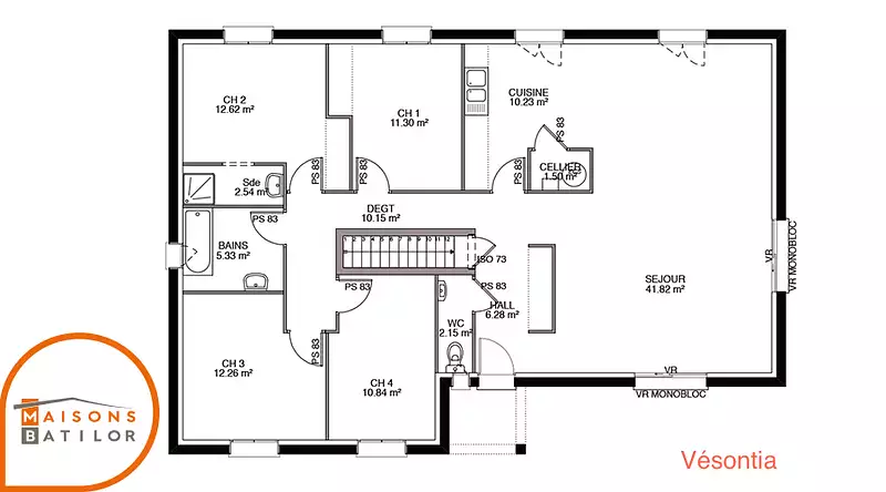
La Vésontia se distingue par ses 4 chambres spacieuses et ses 4 pièces lumineuses, promettant confort et intimité à chaque membre de la famille. Le garage intégré assure une transition fluide entre l'extérieur et l'intérieur, tandis que le porche d'entrée accueille vos invités avec élégance et simplicité.
Conscients des besoins variés de nos clients, nous offrons la possibilité de personnaliser votre maison avec des options très demandées telles qu'un Car Port supplémentaire, un garage plus spacieux ou même un sous-sol, permettant ainsi de créer un espace qui reflète véritablement votre style de vie et vos préférences.
Avec 7 déclinaisons de base, la Vésontia est une invitation à concevoir une maison sur mesure à petit prix. Que vous rêviez d'un grand séjour pour vos réunions de famille, d'une suite parentale pour plus d'intimité, ou d'un bureau pour travailler en toute tranquillité, ce modèle s'adapte à toutes vos envies.
Au-delà de son design attrayant et de sa flexibilité, la Vésontia est une maison écolo de basse consommation, conforme à la réglementation thermique 2020 (RE2020). Cela signifie que vous bénéficierez non seulement d'un confort optimal en toutes saisons, mais aussi d'économies significatives sur vos factures d'énergie.
Choisir la Vésontia, c'est opter pour une maison qui respecte l'environnement tout en répondant à vos attentes de confort, de style et de fonctionnalité. Faites le premier pas vers la maison de vos rêves et laissez-nous vous accompagner dans cette belle aventure.
Référence : 23241
Les informations sur les risques auxquels ce bien est exposé sont disponibles sur le site Géorisques : www.georisques.gouv.fr
- Prix
-
- Prix total : 214 560 €
- Prix du modèle de maison : 173 560 €
- Prix du terrain : 41 000 €
- Terrain
-
- Surface : 950 m²
- Maison
-
- Surface : 109 m²
- Pièces : 5
- Chambres : 4
- Être rappelé par un conseiller
- Demander plus d’infos
- Demande d'information
Aydoilles (88600)
Maisons à proximité
Maison neuve, 109 m²
Aydoilles (88600)
Aydoilles (88600)
Maison de 5 pièces
Maison neuve, 99 m²
Deyvillers (88000)
Deyvillers (88000)
Maison de 5 pièces
Maison neuve, 89 m²
Deyvillers (88000)
Deyvillers (88000)
Maison de 4 pièces
Maison neuve, 135 m²
Deyvillers (88000)
Deyvillers (88000)
Maison de 5 pièces
Maison neuve, 106 m²
Charmois-devant-Bruyères (88460)
Charmois-devant-Bruyères (88460)
Maison de 4 pièces
Maison neuve, 135 m²
Charmois-devant-Bruyères (88460)
Charmois-devant-Bruyères (88460)
Maison de 5 pièces
Programmes à proximité
Contacter BATILOR AGENCE D’ EPINAL (88000) – VOSGES – RÉGION pour recevoir plus d'informations
Remplissez le formulaire ci-dessous, vos informations sont transmises directement au constructeur qui vous contactera par email ou par téléphone afin de traiter votre demande. En savoir plus.