Maison neuve, 91 m² - Aviron (27930)
273 279 €
Aviron (27930)
Proposée par MAISONS BALENCY – 6 pièces - 4 chambres - terrain 2 948 m²
|
|
| MAISONS BALENCY |
- Demande d'information
- Prendre rendez-vous
MAISON À CONSTRUIRE : ceci est une annonce d'une maison neuve à construire.
Aviron : maison T6 (91 m²) en vente
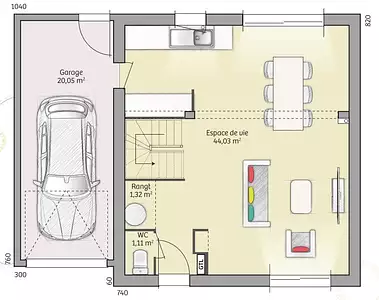
Proche d'Évreux - À Aviron (27930), maison neuve à vendre de 6 pièces, 2 niveaux, 91 m² et 2 948 m² de terrain. Elle propose quatre chambres, une cuisine et une salle de bains.
Proche gares (Évreux Normandie et La Bonneville-sur-Iton), écoles. Accès nationales N13 et N154 à 4 km.
Le prix de vente de cette maison de 6 pièces est de 273 279 €.
. Maisons Balency Gravigny vous accompagne dans tous vos projets immobiliers et à toutes les étapes de l'achat.
Annonce proposée par un Agent Commercial Partenaire.
Référence : KD2260314_1
Terrain proposé par un partenaire foncier selon disponibilités et autorisation de publicité au prix de 123 000 €. Hors droit d'enregistrement et frais de notaire. Maison proposée, avec un contrat de construction de maison individuelle, dans le cadre de la loi du 19/12/1990, au prix de 150 279 € (Hors branchements et raccordements, papiers peints, peintures, revêtement de sol dans les chambres, qui sont chiffrés dans les travaux qui restent à charge du client. Tarif modifiable sans préavis). Étiquette énergie : A. Différents modèles disponibles pour ce terrain. Assurances et garanties du constructeur comprises (RC professionnelle, décennale, dommage ouvrage).
Les informations sur les risques auxquels ce bien est exposé sont disponibles sur le site Géorisques : www.georisques.gouv.fr
Proche d'Évreux - À Aviron (27930), maison neuve à vendre de 6 pièces, 2 niveaux, 91 m² et 2 948 m² de terrain. Elle propose quatre chambres, une cuisine et une salle de bains.
Proche gares (Évreux Normandie et La Bonneville-sur-Iton), écoles. Accès nationales N13 et N154 à 4 km.
Le prix de vente de cette maison de 6 pièces est de 273 279 €.
. Maisons Balency Gravigny vous accompagne dans tous vos projets immobiliers et à toutes les étapes de l'achat.
Annonce proposée par un Agent Commercial Partenaire.
Référence : KD2260314_1
Terrain proposé par un partenaire foncier selon disponibilités et autorisation de publicité au prix de 123 000 €. Hors droit d'enregistrement et frais de notaire. Maison proposée, avec un contrat de construction de maison individuelle, dans le cadre de la loi du 19/12/1990, au prix de 150 279 € (Hors branchements et raccordements, papiers peints, peintures, revêtement de sol dans les chambres, qui sont chiffrés dans les travaux qui restent à charge du client. Tarif modifiable sans préavis). Étiquette énergie : A. Différents modèles disponibles pour ce terrain. Assurances et garanties du constructeur comprises (RC professionnelle, décennale, dommage ouvrage).
Les informations sur les risques auxquels ce bien est exposé sont disponibles sur le site Géorisques : www.georisques.gouv.fr
- Prix
-
- Prix total : 273 279 €
- Prix du modèle de maison : 150 279 €
- Prix du terrain : 123 000 €
- Terrain
-
- Surface : 2 948 m²
- Maison
-
- Surface : 91 m²
- Pièces : 6
- Chambres : 4
- Garage : 1
- Être rappelé par un conseiller
- Demander plus d’infos
- Demande d'information
Aviron (27930)
Maisons à proximité
Maison neuve, 125 m²
Aviron (27930)
Aviron (27930)
Maison de 5 pièces
Maison neuve, 90 m²
Aviron (27930)
Aviron (27930)
Maison de 5 pièces
Maison neuve, 81 m²
Aviron (27930)
Aviron (27930)
Maison de 4 pièces
Maison neuve, 86 m²
Aviron (27930)
Aviron (27930)
Maison de 5 pièces
Maison neuve, 86,78 m²
Aviron (27930)
Aviron (27930)
Maison de 4 pièces
Maison neuve, 60,72 m²
Aviron (27930)
Aviron (27930)
Maison de 3 pièces
Programmes à proximité
Les Amandiers
Louviers (27400)
Louviers (27400)
Appartements de 3 pièces
Livraison 4ème trimestre 2025
Reverso Louviers
Louviers (27400)
Louviers (27400)
Appartements de 1 à 3 pièces
Livraison 4ème trimestre 2025
Contacter MAISONS BALENCY pour recevoir plus d'informations
Remplissez le formulaire ci-dessous, vos informations sont transmises directement au constructeur qui vous contactera par email ou par téléphone afin de traiter votre demande. En savoir plus.