Maison neuve, 120 m² - Ausson (31210)
253 600 €
Ausson (31210)
Proposée par MAISONS FRANCE CONFORT – 5 pièces - 4 chambres - terrain 1 703 m²
|
|
| MAISONS FRANCE CONFORT |
| (104 avis) |
- Demande d'information
- Prendre rendez-vous
MAISON À CONSTRUIRE : ceci est une annonce d'une maison neuve à construire.
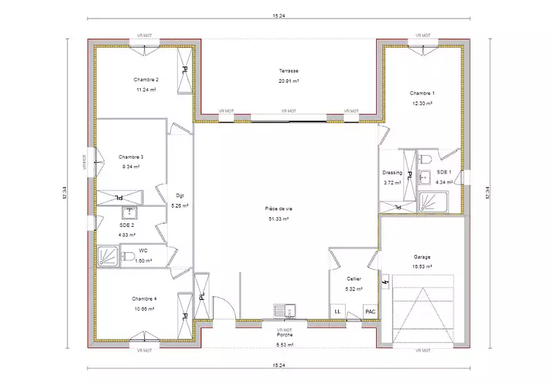
VENTE : maison de 5 pièces (120 m²) à Ausson
Emplacement privilégié - À découvrir à Ausson (31210) : maison neuve 5 pièces à vendre, 120 m² de surface et 1 703 m² de terrain. Elle compte quatre chambres, une cuisine et deux salles de bains.
À dix minutes : gare (Montréjeau-Gourdan-Polignan), tennis et épicerie. Autoroutes A645 et A64 à 3 km. Espagne à 28 km.
Le prix de vente de cette maison de 5 pièces est de 253 600 € frais annexes à prévoir (notaires sur terrain, raccordements ...).
🎨 Votre maison, votre style :
Personnalisez les plans selon vos besoins et vos envies.
Choisissez parmi nos prestations pour un intérieur qui reflète votre mode de vie et votre budget.
. Avec plus de 105 ans d'expérience, Maisons France Confort vous accompagne à chaque étape de votre projet.
✨ Maisons France Confort : Bien construire votre futur ✨
Annonce proposée par un Agent Commercial Partenaire.
Référence : TF2332541_8
Terrain proposé par un partenaire foncier selon disponibilités et autorisation de publicité au prix de 36 000 €. Hors droit d'enregistrement et frais de notaire. Maison proposée, avec un contrat de construction de maison individuelle, dans le cadre de la loi du 19/12/1990, au prix de 217 600 € (Hors branchements et raccordements, papiers peints, peintures, revêtement de sol dans les chambres, qui sont chiffrés dans les travaux qui restent à charge du client. Tarif modifiable sans préavis). Étiquette énergie : A. Différents modèles disponibles pour ce terrain. Assurances et garanties du constructeur comprises (RC professionnelle, décennale, dommage ouvrage).
Les informations sur les risques auxquels ce bien est exposé sont disponibles sur le site Géorisques : www.georisques.gouv.fr
Emplacement privilégié - À découvrir à Ausson (31210) : maison neuve 5 pièces à vendre, 120 m² de surface et 1 703 m² de terrain. Elle compte quatre chambres, une cuisine et deux salles de bains.
À dix minutes : gare (Montréjeau-Gourdan-Polignan), tennis et épicerie. Autoroutes A645 et A64 à 3 km. Espagne à 28 km.
Le prix de vente de cette maison de 5 pièces est de 253 600 € frais annexes à prévoir (notaires sur terrain, raccordements ...).
🎨 Votre maison, votre style :
Personnalisez les plans selon vos besoins et vos envies.
Choisissez parmi nos prestations pour un intérieur qui reflète votre mode de vie et votre budget.
. Avec plus de 105 ans d'expérience, Maisons France Confort vous accompagne à chaque étape de votre projet.
✨ Maisons France Confort : Bien construire votre futur ✨
Annonce proposée par un Agent Commercial Partenaire.
Référence : TF2332541_8
Terrain proposé par un partenaire foncier selon disponibilités et autorisation de publicité au prix de 36 000 €. Hors droit d'enregistrement et frais de notaire. Maison proposée, avec un contrat de construction de maison individuelle, dans le cadre de la loi du 19/12/1990, au prix de 217 600 € (Hors branchements et raccordements, papiers peints, peintures, revêtement de sol dans les chambres, qui sont chiffrés dans les travaux qui restent à charge du client. Tarif modifiable sans préavis). Étiquette énergie : A. Différents modèles disponibles pour ce terrain. Assurances et garanties du constructeur comprises (RC professionnelle, décennale, dommage ouvrage).
Les informations sur les risques auxquels ce bien est exposé sont disponibles sur le site Géorisques : www.georisques.gouv.fr
- Prix
-
- Prix total : 253 600 €
- Prix du modèle de maison : 217 600 €
- Prix du terrain : 36 000 €
- Terrain
-
- Surface : 1 703 m²
- Maison
-
- Surface : 120 m²
- Pièces : 5
- Chambres : 4
- Garage : 1
- Être rappelé par un conseiller
- Demander plus d’infos
- Demande d'information
Ausson (31210)
Maisons à proximité
Maison neuve, 50 m²
Ausson (31210)
Ausson (31210)
Maison de 3 pièces
Maison neuve, 85 m²
Ausson (31210)
Ausson (31210)
Maison de 4 pièces
Maison neuve, 71 m²
Ausson (31210)
Ausson (31210)
Maison de 3 pièces
Maison neuve, 101 m²
Ausson (31210)
Ausson (31210)
Maison de 5 pièces
Maison neuve, 110 m²
Ausson (31210)
Ausson (31210)
Maison de 5 pièces
Maison neuve, 90 m²
Ausson (31210)
Ausson (31210)
Maison de 4 pièces
Programmes à proximité
Contacter MAISONS FRANCE CONFORT pour recevoir plus d'informations
Remplissez le formulaire ci-dessous, vos informations sont transmises directement au constructeur qui vous contactera par email ou par téléphone afin de traiter votre demande. En savoir plus.