Maison neuve, 73 m² - Argentat-sur-Dordogne (19400)
169 349 €
Argentat-sur-Dordogne (19400)
Proposée par BABEAU SEGUIN AGENCE DE BRIVE LA GAILLARDE – CORRE – 3 pièces - 2 chambres - terrain 7 000 m²
|
|
| Babeau Seguin Agence de Brive la Gaillarde – Corre |
- Demande d'information
- Prendre rendez-vous
MAISON À CONSTRUIRE : ceci est une annonce d'une maison neuve à construire.
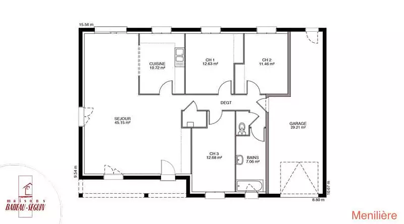
Sur ce terrain, nous vous proposons cette maison neuve, la Ménilière, un modèle plain-pied moderne qui saura répondre à toutes vos attentes. Avec une surface de 73 m², cette maison dispose de 3 pièces, dont 2 chambres, et intègre de base un garage ainsi qu'une longue galerie sur la face avant.
Véritable ""tout-en-un"" de la maison individuelle, la Ménilière est idéale pour votre projet de construction sur-mesure. Elle est disponible avec un toit à 2 pans ou 4 pans, selon vos préférences esthétiques. Le garage intégré et la galerie avant ajoutent une touche de praticité et de confort à votre quotidien.
Parmi les options les plus demandées par nos clients, vous pouvez opter pour des menuiseries en aluminium et un sous-sol, afin de personnaliser encore davantage votre future maison.
Cette maison neuve est basse consommation et conforme à la RE2020, garantissant ainsi des performances énergétiques optimales et un respect des normes environnementales actuelles.
Le constructeur Babeau-Seguin, reconnu pour offrir le meilleur rapport qualité/prix du marché, vous accompagne dans la réalisation de votre projet de vie. Avec un prix serré et une personnalisation facile, il n'est pas étonnant que la Ménilière soit dans le top 5 des ventes de Babeau-Seguin.
Ne manquez pas cette opportunité unique de devenir propriétaire d'une maison moderne, fonctionnelle et économe en énergie. Contactez-nous dès maintenant pour plus d'informations et pour visiter ce modèle sur notre terrain.
Référence : 72832
Les informations sur les risques auxquels ce bien est exposé sont disponibles sur le site Géorisques : www.georisques.gouv.fr
Véritable ""tout-en-un"" de la maison individuelle, la Ménilière est idéale pour votre projet de construction sur-mesure. Elle est disponible avec un toit à 2 pans ou 4 pans, selon vos préférences esthétiques. Le garage intégré et la galerie avant ajoutent une touche de praticité et de confort à votre quotidien.
Parmi les options les plus demandées par nos clients, vous pouvez opter pour des menuiseries en aluminium et un sous-sol, afin de personnaliser encore davantage votre future maison.
Cette maison neuve est basse consommation et conforme à la RE2020, garantissant ainsi des performances énergétiques optimales et un respect des normes environnementales actuelles.
Le constructeur Babeau-Seguin, reconnu pour offrir le meilleur rapport qualité/prix du marché, vous accompagne dans la réalisation de votre projet de vie. Avec un prix serré et une personnalisation facile, il n'est pas étonnant que la Ménilière soit dans le top 5 des ventes de Babeau-Seguin.
Ne manquez pas cette opportunité unique de devenir propriétaire d'une maison moderne, fonctionnelle et économe en énergie. Contactez-nous dès maintenant pour plus d'informations et pour visiter ce modèle sur notre terrain.
Référence : 72832
Les informations sur les risques auxquels ce bien est exposé sont disponibles sur le site Géorisques : www.georisques.gouv.fr
- Prix
-
- Prix total : 169 349 €
- Prix du modèle de maison : 134 349 €
- Prix du terrain : 35 000 €
- Terrain
-
- Surface : 7 000 m²
- Maison
-
- Surface : 73 m²
- Pièces : 3
- Chambres : 2
- Être rappelé par un conseiller
- Demander plus d’infos
- Demande d'information
Argentat-sur-Dordogne (19400)
Maisons à proximité
Maison neuve, 88 m²
Saint-Martin-la-Méanne (19320)
Saint-Martin-la-Méanne (19320)
Maison de 4 pièces
Maison neuve, 71 m²
Albussac (19380)
Albussac (19380)
Maison de 3 pièces
Maison neuve, 80 m²
Albussac (19380)
Albussac (19380)
Maison de 3 pièces
Maison neuve, 88 m²
Champagnac-la-Prune (19320)
Champagnac-la-Prune (19320)
Maison de 4 pièces
Maison neuve, 88 m²
Lagarde-Marc-la-Tour (19150)
Lagarde-Marc-la-Tour (19150)
Maison de 4 pièces
Maison neuve, 91 m²
Lagarde-Marc-la-Tour (19150)
Lagarde-Marc-la-Tour (19150)
Maison de 5 pièces
Programmes à proximité
Contacter BABEAU SEGUIN AGENCE DE BRIVE LA GAILLARDE – CORRE pour recevoir plus d'informations
Remplissez le formulaire ci-dessous, vos informations sont transmises directement au constructeur qui vous contactera par email ou par téléphone afin de traiter votre demande. En savoir plus.
Voir tous nos programmes immobiliers neufs à Argentat-sur-Dordogne