Maison neuve, 135 m² - Archettes (88380)
338 250 €
Archettes (88380)
Proposée par BATILOR AGENCE D’ EPINAL (88000) – VOSGES – RÉGION – 5 pièces - 4 chambres - terrain 850 m²
|
|
| Batilor Agence d’ Epinal (88000) – Vosges – Région |
- Demande d'information
- Prendre rendez-vous
MAISON À CONSTRUIRE : ceci est une annonce d'une maison neuve à construire.
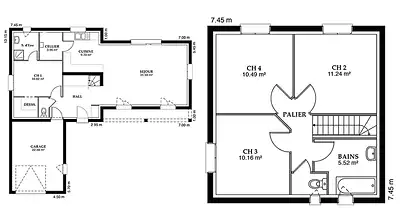
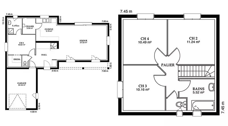
Nous vous proposons cette maison neuve, baptisée Lubéronne, qui incarne l'élégance et le confort moderne tout en s'inspirant du charme intemporel provençal. Avec une surface généreuse de 135 m², cette demeure est conçue pour répondre aux attentes des plus exigeants, alliant fonctionnalité et esthétique.
La Lubéronne se distingue par sa tour caractéristique, offrant une avancée architecturale remarquable, et sa galerie, qui invite à la détente et à la contemplation des paysages environnants. Le double garage spacieux assure un confort pratique au quotidien, répondant ainsi aux besoins de stationnement et de rangement.
Cette maison est composée de 4 chambres confortables, regroupées dans la tour pour préserver l'intimité de chacun, et de 4 pièces lumineuses, dont une partie jour significative qui baigne l'espace de vie en lumière naturelle, créant une atmosphère chaleureuse et accueillante.
Les options les plus plébiscitées, telles que les menuiseries en aluminium, la domotique pour une maison connectée et un crépis coloré, sont disponibles pour personnaliser votre maison selon vos goûts et vos besoins. Ces éléments ajoutent une touche de modernité et de confort, faisant de la Lubéronne un lieu de vie unique et personnalisé.
Construite dans le respect des normes de la RE2020, cette maison neuve est synonyme de basse consommation, garantissant ainsi une efficacité énergétique optimale et un respect de l'environnement. Ce choix responsable contribue à réduire les dépenses énergétiques tout en offrant un cadre de vie sain et agréable.
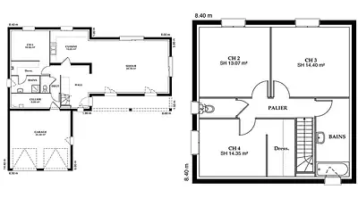
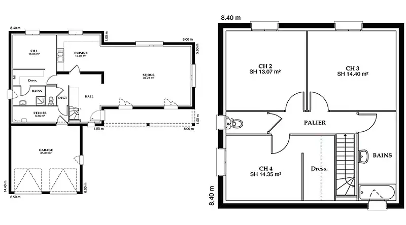
La Lubéronne, avec son style provençal revisité et ses prestations de qualité, est proposée en 3 plans différents, permettant de s'adapter à vos projets de vie et à vos envies. Faites le choix d'une maison qui allie tradition et innovation, pour un quotidien empreint de bien-être.
Référence : 23242
Les informations sur les risques auxquels ce bien est exposé sont disponibles sur le site Géorisques : www.georisques.gouv.fr
La Lubéronne se distingue par sa tour caractéristique, offrant une avancée architecturale remarquable, et sa galerie, qui invite à la détente et à la contemplation des paysages environnants. Le double garage spacieux assure un confort pratique au quotidien, répondant ainsi aux besoins de stationnement et de rangement.
Cette maison est composée de 4 chambres confortables, regroupées dans la tour pour préserver l'intimité de chacun, et de 4 pièces lumineuses, dont une partie jour significative qui baigne l'espace de vie en lumière naturelle, créant une atmosphère chaleureuse et accueillante.
Les options les plus plébiscitées, telles que les menuiseries en aluminium, la domotique pour une maison connectée et un crépis coloré, sont disponibles pour personnaliser votre maison selon vos goûts et vos besoins. Ces éléments ajoutent une touche de modernité et de confort, faisant de la Lubéronne un lieu de vie unique et personnalisé.
Construite dans le respect des normes de la RE2020, cette maison neuve est synonyme de basse consommation, garantissant ainsi une efficacité énergétique optimale et un respect de l'environnement. Ce choix responsable contribue à réduire les dépenses énergétiques tout en offrant un cadre de vie sain et agréable.
La Lubéronne, avec son style provençal revisité et ses prestations de qualité, est proposée en 3 plans différents, permettant de s'adapter à vos projets de vie et à vos envies. Faites le choix d'une maison qui allie tradition et innovation, pour un quotidien empreint de bien-être.
Référence : 23242
Les informations sur les risques auxquels ce bien est exposé sont disponibles sur le site Géorisques : www.georisques.gouv.fr
- Prix
-
- Prix total : 338 250 €
- Prix du modèle de maison : 258 250 €
- Prix du terrain : 80 000 €
- Terrain
-
- Surface : 850 m²
- Maison
-
- Surface : 135 m²
- Pièces : 5
- Chambres : 4
- Être rappelé par un conseiller
- Demander plus d’infos
- Demande d'information
Archettes (88380)
Maisons à proximité
Maison neuve, 81 m²
Pouxeux (88550)
Pouxeux (88550)
Maison de 4 pièces
Maison neuve, 116 m²
Hadol (88220)
Hadol (88220)
Maison de 4 pièces
Maison neuve, 88 m²
Hadol (88220)
Hadol (88220)
Maison de 4 pièces
Maison neuve, 135 m²
Hadol (88220)
Hadol (88220)
Maison de 5 pièces
Maison neuve, 106 m²
Charmois-devant-Bruyères (88460)
Charmois-devant-Bruyères (88460)
Maison de 4 pièces
Maison neuve, 135 m²
Charmois-devant-Bruyères (88460)
Charmois-devant-Bruyères (88460)
Maison de 5 pièces
Programmes à proximité
Contacter BATILOR AGENCE D’ EPINAL (88000) – VOSGES – RÉGION pour recevoir plus d'informations
Remplissez le formulaire ci-dessous, vos informations sont transmises directement au constructeur qui vous contactera par email ou par téléphone afin de traiter votre demande. En savoir plus.