Maison neuve, 71 m² - Arcey (25750)
192 731 €
Arcey (25750)
Proposée par BABEAU SEGUIN AGENCE DE MONTBÉLIARD (25) – 3 pièces - 2 chambres - terrain 907 m²
|
|
| Babeau Seguin Agence de Montbéliard (25) |
- Demande d'information
- Prendre rendez-vous
MAISON À CONSTRUIRE : ceci est une annonce d'une maison neuve à construire.
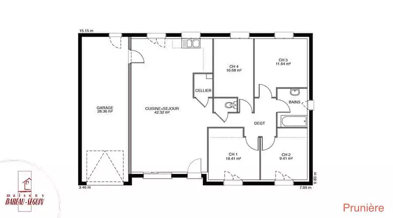
Sur ce terrain, nous vous proposons cette maison neuve, la Prunière, l’un des modèles les plus vendus par Babeau-Seguin, constructeur offrant le meilleur rapport qualité/prix du marché. Figurant dans le top 5 des maisons individuelles Babeau-Seguin, cette maison plain-pied Prunière séduit par son renfoncement qui casse la monotonie de la façade avant et offre un abri de seuil.
Avec une surface de 73 m², cette maison traditionnelle comprend 3 pièces, dont 2 chambres, et un garage intégré. Vous avez le choix entre une toiture à 2 pans ou à 4 pans, selon vos préférences esthétiques.
La Prunière est également une maison basse consommation, conforme à la réglementation environnementale RE2020, ce qui vous garantit des économies d'énergie et un confort optimal tout au long de l'année.
Si on devait retenir la Prunière, ce serait toutefois son prix ! La Prunière est en effet la maison à petit prix par excellence, tout en offrant des prestations de qualité.
Ne manquez pas cette opportunité de construire une maison qui allie confort, économie et esthétisme. Contactez-nous pour plus d'informations et pour découvrir toutes les options disponibles pour personnaliser votre future maison.
Référence : 65882
Les informations sur les risques auxquels ce bien est exposé sont disponibles sur le site Géorisques : www.georisques.gouv.fr
Avec une surface de 73 m², cette maison traditionnelle comprend 3 pièces, dont 2 chambres, et un garage intégré. Vous avez le choix entre une toiture à 2 pans ou à 4 pans, selon vos préférences esthétiques.
La Prunière est également une maison basse consommation, conforme à la réglementation environnementale RE2020, ce qui vous garantit des économies d'énergie et un confort optimal tout au long de l'année.
Si on devait retenir la Prunière, ce serait toutefois son prix ! La Prunière est en effet la maison à petit prix par excellence, tout en offrant des prestations de qualité.
Ne manquez pas cette opportunité de construire une maison qui allie confort, économie et esthétisme. Contactez-nous pour plus d'informations et pour découvrir toutes les options disponibles pour personnaliser votre future maison.
Référence : 65882
Les informations sur les risques auxquels ce bien est exposé sont disponibles sur le site Géorisques : www.georisques.gouv.fr
- Prix
-
- Prix total : 192 731 €
- Prix du modèle de maison : 142 831 €
- Prix du terrain : 49 900 €
- Terrain
-
- Surface : 907 m²
- Maison
-
- Surface : 71 m²
- Pièces : 3
- Chambres : 2
- Être rappelé par un conseiller
- Demander plus d’infos
- Demande d'information
Arcey (25750)
Maisons à proximité
Maison neuve, 73 m²
Arcey (25750)
Arcey (25750)
Maison de 3 pièces
Maison neuve, 71 m²
Arcey (25750)
Arcey (25750)
Maison de 3 pièces
Maison neuve, 71 m²
Montenois (25260)
Montenois (25260)
Maison de 3 pièces
Maison neuve, 73 m²
Présentevillers (25550)
Présentevillers (25550)
Maison de 3 pièces
Maison neuve, 71 m²
Etouvans (25260)
Etouvans (25260)
Maison de 3 pièces
Maison neuve, 71 m²
Colombier-Fontaine (25260)
Colombier-Fontaine (25260)
Maison de 3 pièces
Programmes à proximité
Résidence du Bois Bourgeois
Montbéliard (25200)
Montbéliard (25200)
Appartements de 2 à 4 pièces
Livraison 4ème trimestre 2027
Le Clos des Arts
Belfort (90000)
Belfort (90000)
Appartements de 3 à 4 pièces
LE VERGER DE L'ALLAINE
Grandvillars (90600)
Grandvillars (90600)
Appartements de 2 à 4 pièces
Livraison 2ème semestre 2027
Contacter BABEAU SEGUIN AGENCE DE MONTBÉLIARD (25) pour recevoir plus d'informations
Remplissez le formulaire ci-dessous, vos informations sont transmises directement au constructeur qui vous contactera par email ou par téléphone afin de traiter votre demande. En savoir plus.