Maison neuve, 127 m² - Amboise (37400)

341 000 €
Amboise (37400)

Proposée par CONSTRUCTIONS IDEALE DEMEURE – 6 pièces - 4 chambres - terrain 553 m²

CONSTRUCTIONS IDEALE DEMEURE
CONSTRUCTIONS IDEALE DEMEURE
  • Demande d'information
MAISON À CONSTRUIRE : ceci est une annonce d'une maison neuve à construire.
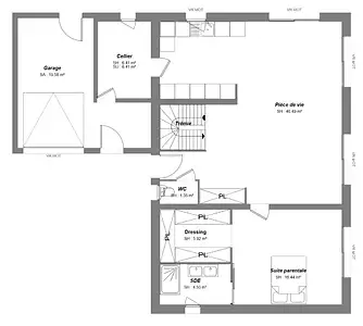
Belle maison à construire de 127 m², avec une grande pièce de vie lumineuse de plus de 46 m² bénéficiant d'une double exposition.
Au rez-de-chaussée, une suite parentale confortable avec grand dressing et salle d'eau privative.
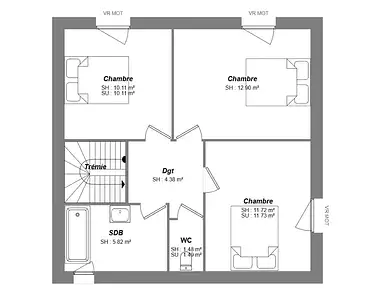
À l'étage, trois belles chambres accompagnées d'une salle de bains et de WC séparés.
Je reste disponible pour toutes demandes de renseignements, n'hésitez pas me contacter : Stéphane Digneton : O6.64.92.89.69.
Référence : SD2365854_7
Terrain proposé par un partenaire foncier selon disponibilités et autorisation de publicité au prix de 96 000 €. Hors droit d'enregistrement et frais de notaire. Terrain + Maison proposés au prix de 245 000 € (Hors branchements et raccordements, papiers peints, peintures, revêtement de sol dans les chambres. Tarif modifiable sans préavis). Etiquette énergie : A. Différents modèles disponibles pour ce terrain. Assurances et garanties du constructeur (RC professionnelle, décennale, dommage ouvrage, garantie de remboursement de l'acompte, livraison à prix et délai convenu) : https://www.constructions-ideale-demeure.fr/mentions-legales/.

Les informations sur les risques auxquels ce bien est exposé sont disponibles sur le site Géorisques : www.georisques.gouv.fr


Prix
  • Prix total : 341 000 €
  • Prix du modèle de maison : 245 000 €
  • Prix du terrain : 96 000 €

Terrain
  • Surface : 553 m²

Maison
  • Surface : 127 m²
  • Pièces : 6
  • Chambres : 4
  • Garage : 1

  • Être rappelé par un conseiller
  • Demander plus d’infos
  • Demande d'information
Amboise (37400)

Programmes à proximité

Le Clos des Cordeliers
Le Clos des Cordeliers
Amboise (37400)

Appartements de 3 à 4 pièces
Livraison 1er trimestre 2026

L'Ecrin des Chartreux
L'Ecrin des Chartreux
Bléré (37150)

Appartements de 2 pièces
Livraison 1er trimestre 2028

Le Domaine des Chartreux
Le Domaine des Chartreux
Bléré (37150)

Appartements de 2 à 4 pièces et maison de 3 pièces
Livraison 3ème trimestre 2027

COURTIL MONTLOUIS - MONTLOUIS SUR LOIRE
COURTIL MONTLOUIS - MONTLOUIS SUR LOIRE
Montlouis-sur-Loire (37270)

Appartements de 2 à 4 pièces
Livraison 4ème trimestre 2026

CARRE DES HALLES
CARRE DES HALLES
Vouvray (37210)

Appartements de 1 à 4 pièces
Livraison 4ème trimestre 2027

LOUISE DE BOURBON
LOUISE DE BOURBON
La Ville-aux-Dames (37700)

Appartements de 3 pièces
Livraison 2ème trimestre 2026

Contacter CONSTRUCTIONS IDEALE DEMEURE pour recevoir plus d'informations

Remplissez le formulaire ci-dessous, vos informations sont transmises directement au constructeur qui vous contactera par email ou par téléphone afin de traiter votre demande. En savoir plus.

Voir tous nos programmes immobiliers neufs à Amboise