Maison neuve, 95 m² - Alès (30100)
244 200 €
Alès (30100)
Proposée par MAISONS BALENCY – 5 pièces - 3 chambres - terrain 329 m²
|
|
| MAISONS BALENCY |
| (37 avis) |
- Demande d'information
- Prendre rendez-vous
MAISON À CONSTRUIRE : ceci est une annonce d'une maison neuve à construire.
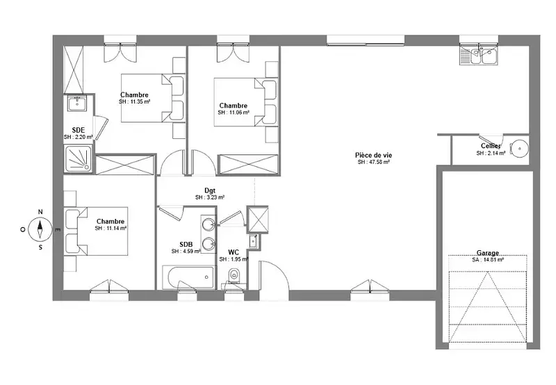
VENTE d'une maison T5 (95 m²) à Alès
Idéalement située - À découvrir à Alès (30100) : maison neuve 5 pièces en vente. Surface de 95 m² sur 329 m² de terrain. Son intérieur inclut trois chambres, une cuisine et deux salles de bains.
Proche gare (Alès), établissements scolaires, crèches, bibliothèque, bassin de natation, tennis, supermarchés, commerces, boulangeries, boucheries-charcuteries et bureau de poste. Nationale N106 à 3 km.
Cette maison de 5 pièces est proposée à l'achat pour 244 200 €.
Prenez contact avec notre agence (Pascale PIEL : O6-O1-26-64-83) pour tout renseignement sur la maison. Faites de vos projets immobiliers une réalité avec Maisons Balency Uzès.
Référence : PP2401515_2
Terrain proposé par un partenaire foncier selon disponibilités et autorisation de publicité au prix de 59 900 €. Hors droit d'enregistrement et frais de notaire. Terrain + Maison proposés au prix de 184 300 € (Hors branchements et raccordements, papiers peints, peintures, revêtement de sol dans les chambres. Tarif modifiable sans préavis). Etiquette énergie : A. Différents modèles disponibles pour ce terrain. Assurances et garanties du constructeur (RC professionnelle, décennale, dommage ouvrage, garantie de remboursement de l'acompte, livraison à prix et délai convenu) : https://www.maisons-balency.fr/informations-legales/. HEXAOM Services est enregistré auprès de l'ORIAS en tant que Courtier en financement, Niveau 1, sous le numéro 14001345.
Les informations sur les risques auxquels ce bien est exposé sont disponibles sur le site Géorisques : www.georisques.gouv.fr
Idéalement située - À découvrir à Alès (30100) : maison neuve 5 pièces en vente. Surface de 95 m² sur 329 m² de terrain. Son intérieur inclut trois chambres, une cuisine et deux salles de bains.
Proche gare (Alès), établissements scolaires, crèches, bibliothèque, bassin de natation, tennis, supermarchés, commerces, boulangeries, boucheries-charcuteries et bureau de poste. Nationale N106 à 3 km.
Cette maison de 5 pièces est proposée à l'achat pour 244 200 €.
Prenez contact avec notre agence (Pascale PIEL : O6-O1-26-64-83) pour tout renseignement sur la maison. Faites de vos projets immobiliers une réalité avec Maisons Balency Uzès.
Référence : PP2401515_2
Terrain proposé par un partenaire foncier selon disponibilités et autorisation de publicité au prix de 59 900 €. Hors droit d'enregistrement et frais de notaire. Terrain + Maison proposés au prix de 184 300 € (Hors branchements et raccordements, papiers peints, peintures, revêtement de sol dans les chambres. Tarif modifiable sans préavis). Etiquette énergie : A. Différents modèles disponibles pour ce terrain. Assurances et garanties du constructeur (RC professionnelle, décennale, dommage ouvrage, garantie de remboursement de l'acompte, livraison à prix et délai convenu) : https://www.maisons-balency.fr/informations-legales/. HEXAOM Services est enregistré auprès de l'ORIAS en tant que Courtier en financement, Niveau 1, sous le numéro 14001345.
Les informations sur les risques auxquels ce bien est exposé sont disponibles sur le site Géorisques : www.georisques.gouv.fr
- Prix
-
- Prix total : 244 200 €
- Prix du modèle de maison : 184 300 €
- Prix du terrain : 59 900 €
- Terrain
-
- Surface : 329 m²
- Maison
-
- Surface : 95 m²
- Pièces : 5
- Chambres : 3
- Garage : 1
- Être rappelé par un conseiller
- Demander plus d’infos
- Demande d'information
Alès (30100)
Maisons à proximité
Maison neuve
Alès (30100)
Alès (30100)
Maison
Maison neuve, 80 m²
Alès (30100)
Alès (30100)
Maison de 4 pièces
Maison neuve
Alès (30100)
Alès (30100)
Maison
Maison neuve, 81 m²
Alès (30100)
Alès (30100)
Maison de 4 pièces
Maison neuve
Alès (30100)
Alès (30100)
Maison
Maison neuve
Alès (30100)
Alès (30100)
Maison
Programmes à proximité
Urbanéo Les mines Alès
Alès (30100)
Alès (30100)
Appartements de 1 à 3 pièces
Livraison 2ème trimestre 2027
Contacter MAISONS BALENCY pour recevoir plus d'informations
Remplissez le formulaire ci-dessous, vos informations sont transmises directement au constructeur qui vous contactera par email ou par téléphone afin de traiter votre demande. En savoir plus.