Maison neuve, 95 m² - Aix-en-Provence (13080)

460 000 €
Aix-en-Provence (13080)

Proposée par MAISONS FRANCE CONFORT – 4 pièces - 3 chambres - terrain 900 m²

MAISONS FRANCE CONFORT
MAISONS FRANCE CONFORT
(97 avis)
  • Demande d'information
MAISON À CONSTRUIRE : ceci est une annonce d'une maison neuve à construire.
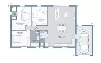
Notre Agence Maisons France Confort Cabriès à Expobat Plan de Campagne est ravis de vous présenter avec nos Partenaires Fonciers ce terrain de 900m2 sur la Commune de Luynes située à deux pas d'Aix en Provence avec ce modèle de maison 5 pièces de 95 à 115m2 m² de Plan Pied avec un garage. (Mitoyenneté)
Elle offre trois à quatre chambres, une cuisine et deux salles de bains. Selon vos Besoins...
L'école élémentaire Montessori Internationale de Cabriès est implantée à moins de 10 minutes à pied.
Niveau transports en commun, on trouve neuf gares à moins de 10 minutes en voiture.
Des autoroutes sont accessibles à moins de 3 minutes en voiture.
Le prix de ce Projet est proposée pour 440 000 € à 490 000 €.
N'hésitez pas à prendre contact avec notre Agence Maisons France Confort à Cabriès Plan de Campagne
Jean Luc ASCIONE (Tel: O6-30-65-82-36) pour toute question sur la maison ou sur les modalités de vente. Donnez vie à vos projets immobiliers avec Maisons France Confort Cabriès.
Référence : JLA2338985
Terrain proposé par un partenaire foncier selon disponibilités et autorisation de publicité au prix de €. Hors droit d'enregistrement et frais de notaire. Maison proposée, avec un contrat de construction de maison individuelle, dans le cadre de la loi du 19/12/1990, au prix de 460 000 € (Hors branchements et raccordements, papiers peints, peintures, revêtement de sol dans les chambres, qui sont chiffrés dans les travaux qui restent à charge du client. Tarif modifiable sans préavis). Étiquette énergie : A. Différents modèles disponibles pour ce terrain. Assurances et garanties du constructeur comprises (RC professionnelle, décennale, dommage ouvrage).

Les informations sur les risques auxquels ce bien est exposé sont disponibles sur le site Géorisques : www.georisques.gouv.fr


Prix
  • Prix total : 460 000 €
  • Prix du modèle de maison : N.C.
  • Prix du terrain : N.C.

Terrain
  • Surface : 900 m²

Maison
  • Surface : 95 m²
  • Pièces : 4
  • Chambres : 3
  • Garage : 1

  • Être rappelé par un conseiller
  • Demander plus d’infos
  • Demande d'information
Aix-en-Provence (13080)

Maisons à proximité

Domaine de l'Oratoire
Domaine de l'Oratoire
Aix-en-Provence (13090)

Appartements de 3 à 4 pièces et maisons de 4 à 5 pièces
Livraison 4ème trimestre 2026

88 Gambetta
88 Gambetta
Aix-en-Provence (13080)

Appartement de 6 pièces et maisons de 6 pièces
Livraison 2ème trimestre 2027

LE CLOS SAINT ALBERT
LE CLOS SAINT ALBERT
Aix-en-Provence (13080)

Maisons de 3 à 4 pièces
Livraison 1er trimestre 2027

Programmes à proximité

Domaine de l'Oratoire
Domaine de l'Oratoire
Aix-en-Provence (13090)

Appartements de 3 à 4 pièces et maisons de 4 à 5 pièces
Livraison 4ème trimestre 2026

Signature - Célony
Signature - Célony
Aix-en-Provence (13090)

Appartement de 2 pièces
Livraison 2ème trimestre 2028

Les Bastides de Célony
Les Bastides de Célony
Aix-en-Provence (13100)

Appartements de 3 à 4 pièces
Livraison 2ème trimestre 2025

Domaine K-Ducée
Domaine K-Ducée
Vitrolles (13127)

Appartements de 4 à 5 pièces
Livraison 3ème trimestre 2026

88 Gambetta
88 Gambetta
Aix-en-Provence (13080)

Appartement de 6 pièces et maisons de 6 pièces
Livraison 2ème trimestre 2027

MOSAÏK
MOSAÏK
Aix-en-Provence (13090)

Appartement de 4 pièces
Livraison 4ème trimestre 2026

Contacter MAISONS FRANCE CONFORT pour recevoir plus d'informations

Remplissez le formulaire ci-dessous, vos informations sont transmises directement au constructeur qui vous contactera par email ou par téléphone afin de traiter votre demande. En savoir plus.

Voir tous nos programmes immobiliers neufs à Aix-en-Provence