Maison neuve, 123 m² - Tiercé (49125)

387 000 €
Tiercé (49125)

Proposée par MAISONS BERNARD JAMBERT – 6 pièces - 4 chambres - terrain 600 m²

MAISONS BERNARD JAMBERT
MAISONS BERNARD JAMBERT
  • Demande d'information
MAISON À CONSTRUIRE : ceci est une annonce d'une maison neuve à construire.
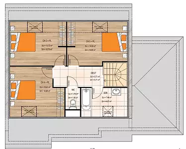
VENTE : maison de 6 pièces (123 m²) à Tiercé
Quartier recherché - À découvrir à Tiercé (49125) : maison neuve 6 pièces en vente, 2 niveaux, 123 m² de surface sur 600 m² de terrain. Elle inclut quatre chambres, une cuisine et deux salles de bains.
À proximité : gare (Tiercé), écoles, tennis, commerces, boulangeries, supermarché, boucheries-charcuteries et épicerie. Accès autoroutes A11, A85 et A87N à 13 km. Angers à 18 km.
Cette maison de 6 pièces est à vendre pour la somme de 387 000 €.
. Donnez vie à vos projets immobiliers avec Maisons Bernard Jambert Angers.
Référence : CP2260468_3
Terrain proposé par un partenaire foncier selon disponibilités et autorisation de publicité au prix de 87 000 €. Hors droit d'enregistrement et frais de notaire. Maison proposée, avec un contrat de construction de maison individuelle, dans le cadre de la loi du 19/12/1990, au prix de 300 000 € (Hors branchements et raccordements, papiers peints, peintures, revêtement de sol dans les chambres, qui sont chiffrés dans les travaux qui restent à charge du client. Tarif modifiable sans préavis). Étiquette énergie : A. Différents modèles disponibles pour ce terrain. Assurances et garanties du constructeur comprises (RC professionnelle, décennale, dommage ouvrage).

Les informations sur les risques auxquels ce bien est exposé sont disponibles sur le site Géorisques : www.georisques.gouv.fr


Prix
  • Prix total : 387 000 €
  • Prix du modèle de maison : 300 000 €
  • Prix du terrain : 87 000 €

Terrain
  • Surface : 600 m²

Maison
  • Surface : 123 m²
  • Pièces : 6
  • Chambres : 4
  • Garage : 1

  • Être rappelé par un conseiller
  • Demander plus d’infos
  • Demande d'information
Tiercé (49125)

Programmes à proximité

LE CLOS SAINT-SYLVAIN
LE CLOS SAINT-SYLVAIN
Saint-Sylvain-d'Anjou (49480)

Appartements de 3 pièces et maison de 4 pièces
Livraison 2ème trimestre 2027

KENNEDY
KENNEDY
Avrillé (49240)

Appartements de 2 à 5 pièces et maisons de 4 à 5 pièces
Livraison 4ème trimestre 2026

Le Domaine des Tilleuls
Le Domaine des Tilleuls
Avrillé (49240)

Appartements de 2 à 4 pièces
Livraison 1er trimestre 2027

Le Floréa
Le Floréa
Avrillé (49240)

Appartements de 2 à 4 pièces
Livraison 4ème trimestre 2026

Chrysalide
Chrysalide
Avrillé (49240)

Appartement de 4 pièces
Livraison 2ème trimestre 2026

Initiale
Initiale
Saint-Barthélemy-d'Anjou (49124)

Appartements de 2 à 4 pièces
Livraison 4ème trimestre 2027

Contacter MAISONS BERNARD JAMBERT pour recevoir plus d'informations

Remplissez le formulaire ci-dessous, vos informations sont transmises directement au constructeur qui vous contactera par email ou par téléphone afin de traiter votre demande. En savoir plus.

Voir tous nos programmes immobiliers neufs à Tiercé