Maison neuve, 135 m² - Franqueville-Saint-Pierre (76520)

417 422 €
Franqueville-Saint-Pierre (76520)

Proposée par MAISONS CLEROISES AGENCE DE QUINCAMPOIX – 5 pièces - 4 chambres - terrain 524 m²

Maisons Cleroises Agence de Quincampoix
Maisons Cleroises Agence de Quincampoix
(81 avis)
  • Demande d'information
MAISON À CONSTRUIRE : ceci est une annonce d'une maison neuve à construire.
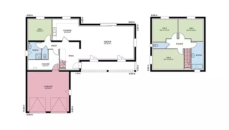
Nous vous proposons cette maison neuve, baptisée ""Barentine"", un modèle de résidence qui allie élégance et fonctionnalité, conçu pour répondre aux attentes des familles modernes. Avec une surface généreuse de 135 m², cette maison offre un espace de vie confortable et bien pensé, réparti en 4 chambres et 4 pièces principales, idéal pour accueillir une famille désireuse de confort et de bien-être.
La Barentine se distingue par son plan en L, optimisant l'espace et offrant une séparation naturelle entre les espaces de vie et l'espace nuit, pour un quotidien harmonieux. La présence d'une tour centrale ajoute un cachet inimitable à l'ensemble, faisant de cette maison un lieu unique où il fait bon vivre.
L'intégration d'un garage offre non seulement un espace de stationnement sécurisé mais aussi un espace de rangement supplémentaire, essentiel pour une vie de famille organisée. De plus, la maison dispose d'une deuxième salle de bains, garantissant confort et intimité pour tous les membres de la famille.
Conforme à la norme RE2020, la Barentine est une maison basse consommation, conçue avec une attention particulière portée à l'efficacité énergétique et à l'impact environnemental. Ce modèle intègre des options très demandées telles que des menuiseries en aluminium et un système de domotique avancé, offrant ainsi un confort de vie inégalé tout en maîtrisant votre consommation d'énergie.
L'extérieur de la maison peut être personnalisé avec un enduit bicolore, ajoutant une touche d'élégance et de personnalité à votre façade. La toiture, disponible en 2 ou 4 pans, complète le design provençal de cette demeure, faisant de la Barentine une maison prestigieuse et attachante qui saura vous séduire.
Choisir la Barentine, c'est opter pour une maison neuve, moderne et écologique, prête à accueillir votre famille dans les meilleures conditions. Ne manquez pas l'opportunité de construire la maison de vos rêves, une maison qui allie beauté architecturale, confort de vie et respec
Référence : 7876

Les informations sur les risques auxquels ce bien est exposé sont disponibles sur le site Géorisques : www.georisques.gouv.fr


Prix
  • Prix total : 417 422 €
  • Prix du modèle de maison : 239 422 €
  • Prix du terrain : 178 000 €

Terrain
  • Surface : 524 m²

Maison
  • Surface : 135 m²
  • Pièces : 5
  • Chambres : 4

  • Être rappelé par un conseiller
  • Demander plus d’infos
  • Demande d'information
Franqueville-Saint-Pierre (76520)

Programmes à proximité

L'ECRIN VERT
L'ECRIN VERT
Le Mesnil-Esnard (76240)

Appartements de 2 à 4 pièces
Livraison 4ème trimestre 2027

Rodbaek Village
Rodbaek Village
Darnétal (76160)

Appartements de 1 à 3 pièces et maisons de 4 à 5 pièces
Livraison 1er trimestre 2027

Louise Sainte-Martine
Louise Sainte-Martine
Sotteville-lès-Rouen (76300)

Appartements de 2 à 4 pièces
Livraison 2ème trimestre 2028

Le Jardin d'Adélaïde
Le Jardin d'Adélaïde
Sotteville-lès-Rouen (76300)

Appartements de 2 à 3 pièces et maisons de 4 pièces
Livraison 2ème trimestre 2025

22 POUCHET
22 POUCHET
Rouen (76000)

Appartements de 2 à 4 pièces
Livraison 4ème trimestre 2026

Reverso Mathilde
Reverso Mathilde
Rouen (76000)

Appartements de 1 à 3 pièces
Livraison 4ème trimestre 2027

Contacter MAISONS CLEROISES AGENCE DE QUINCAMPOIX pour recevoir plus d'informations

Remplissez le formulaire ci-dessous, vos informations sont transmises directement au constructeur qui vous contactera par email ou par téléphone afin de traiter votre demande. En savoir plus.

Voir tous nos programmes immobiliers neufs à Franqueville-Saint-Pierre